Model Tinsdale II
Durham, North Carolina New Homes for Sale
Durham, North Carolina New Homes for Sale
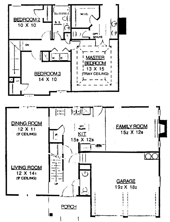
3 Bedroom, 2.5 Bath, 2 Car Garage
1717 - Square Feet
$144,450
Model Tinsdale II - Durham, North Carolina New Homes for Sale
3 Bedroom, 2.5 Bath, 2 Car Garage
1717 - Square Feet
$144,450
Area: Durham, North Carolina
This home features a family room with with a fireplace and a gourmet kithchen that opens to a windowed breakfast area. There is a formal living room and dining room, a study with a full bath, the master bedroom with a tray ceiling, walk-in closet and an exceptional garden bath.
Please complete the form below to get more information on Model Tinsdale II and other available new home listings from a local Durham, North Carolina Real Estate Agent
Contact a local Durham, NC Real Estate Agent
(Please enter all fields.)
Tinsdale II in Durham
Featured New Home
Featured Real Estate Agents
Paul Hofmann
Fonville Morisey Real Estate

Phone: (919) 587-8558
Durham, NC
Bill Stevenson
Keller Williams

Phone: (919) 586-8989
Raleigh, NC
Charles D. Davies
Dudley Real Estate Group

Phone: (919) 917-9271
Raleigh, NC
Brooks Brittingham
Berkshire Hathaway HomeServices Carolinas Rea

Phone: (919) 602-2647
Durham, NC
Amy Pomerantz
The Amy Pomerantz Group, kW

Phone: (919) 729-6198
Raleigh, NC
[email protected]
Featured Mortgage Brokers
- BANK OF AMERICA NA CHARLOTTE, FOREST HILLS, NY
10510 QUEENS BLVD STE 2
FOREST HILLS, NY 11375 - VENTA FINANCIAL GROUP INC, LAS VEGAS, NV
1300 S JONES BLVD STE 150
LAS VEGAS, NV 89146 - CASTLE & COOKE MORTGAGE LLC, GREENWOOD VILLAGE, CO
7400 E ORCHARD RD # 2900N
GREENWOOD VILLAGE, CO 80111 - SUMMIT MORTGAGE INC, FORT WAYNE, IN
8614 SAINT JOE RD
FORT WAYNE, IN 46835 - MCCUE MORTGAGE COMPANY, NEW BRITAIN, CT
1 LIBERTY SQ
NEW BRITAIN, CT 6051
