Model Tinsdale
Durham, North Carolina New Homes for Sale
Durham, North Carolina New Homes for Sale
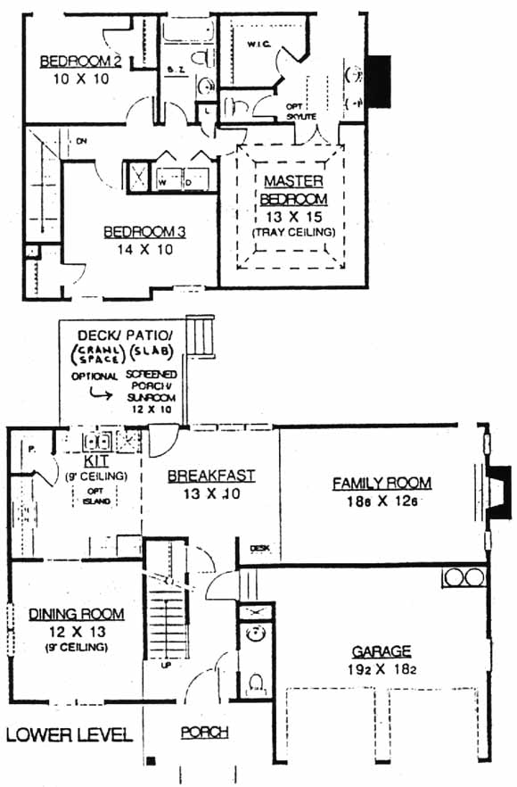
4 Bedroom, 2.5 Bath, 2 Car Garage
1717 - Square Feet Heat and Air
$144,450
Model Tinsdale - Durham, North Carolina New Homes for Sale
4 Bedroom, 2.5 Bath, 2 Car Garage
1717 - Square Feet Heat and Air
$144,450
Area: Durham, North Carolina
This home features a family room with with a fireplace and a gourmet kithchen that opens to a windowed breakfast area. There is a formal living room and dining room, a study with a full bath, the master bedroom with a tray ceiling, walk-in closet and an exceptional garden bath.
Please complete the form below to get more information on Model Tinsdale and other available new home listings from a local Durham, North Carolina Real Estate Agent
Contact a local Durham, NC Real Estate Agent
(Please enter all fields.)
Tinsdale in Durham
Featured New Home
Featured Real Estate Agents
Paul Hofmann
Fonville Morisey Real Estate

Phone: (919) 587-8558
Durham, NC
Adam Dickinson, MBA
501 Realty

Phone: (919) 344-0960
Durham, NC
[email protected]
Patty Gillespie PhD
Keller Williams

Phone: (919) 587-8392
Raleigh, NC
Stacy Slone
Phyllis Brown and Associates

Phone: (919) 972-1180
Durham, NC
[email protected]
Brooks Brittingham
Berkshire Hathaway HomeServices Carolinas Rea

Phone: (919) 602-2647
Durham, NC
Featured Mortgage Brokers
- MOVEMENT MORTGAGE LLC, RICHMOND, VA
5014 MONUMENT AVE
RICHMOND, VA 23230 - AMERICAN BANK, ROCKVILLE, MD
9201 CORPORATE BLVD STE 130
ROCKVILLE, MD 20850 - PRIMARY RESIDENTIAL MORTGAGE INC, SAN FRANCISCO, CA
1746 18TH ST
SAN FRANCISCO, CA 94107 - MOVEMENT MORTGAGE LLC, CHARLOTTESVILLE, VA
2271 SEMINOLE LN
CHARLOTTESVILLE, VA 22901 - ADVISORS MORTGAGE GROUP LLC, TURNERSVILLE, NJ
4991 BLACK HORSE PIKE
TURNERSVILLE, NJ 8012
