Model Dover
Durham, North Carolina New Homes for Sale
                                                                                        
                                        Durham, North Carolina New Homes for Sale
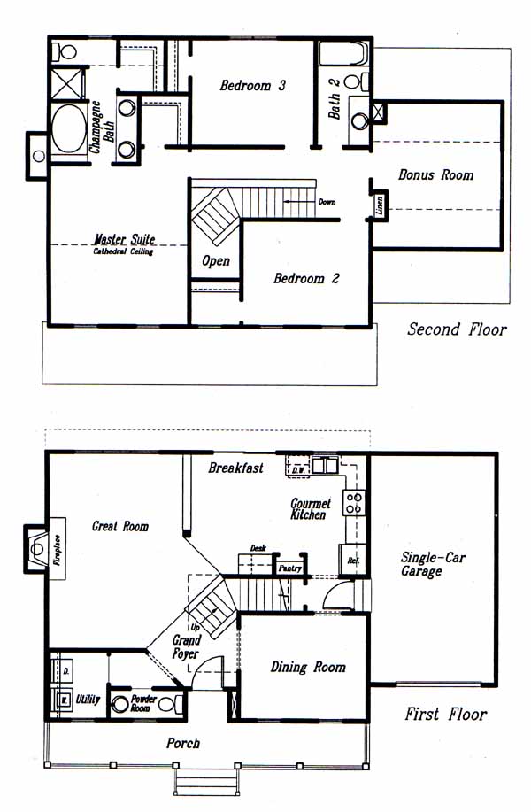
                                            3 Bedroom, 2.5 Bath, 2 Car Garage
1905 Square Feet
$164,775
                                            
Model Dover - Durham, North Carolina New Homes for Sale
                                        3 Bedroom, 2.5 Bath, 2 Car Garage
1905 Square Feet
$164,775
Area: Durham, North Carolina
This convenient community is minutes from schools and excellent shopping. The Dover features a 2 story grand foyer, a great room with fireplace, a gourmet kitchen with a breakfast area and an adjoining formal dining room. Upstairs there is a master suite with cathedral ceiling and champagne bath.
Please complete the form below to get more information on Model Dover and other available new home listings from a local Durham, North Carolina Real Estate Agent
Contact a local Durham, NC Real Estate Agent
(Please enter all fields.)
Dover in Durham
Featured New Home
								Featured Real Estate Agents
Brooks Brittingham
Berkshire Hathaway HomeServices Carolinas Rea
                                            
                                            Phone: (919) 602-2647
                                            Durham,  NC
                                                                                        
Charles D. Davies
Dudley Real Estate Group
                                            
                                            Phone: (919) 917-9271
                                            Raleigh,  NC
                                                                                        
Bill Stevenson
Keller Williams
                                            
                                            Phone: (919) 586-8989
                                            Raleigh,  NC
                                                                                        
Amy Pomerantz
The Amy Pomerantz Group, kW
                                            
                                            Phone: (919) 729-6198
                                            Raleigh,  NC
                                                                                        [email protected]
                                                                                        
Stacy Slone
Phyllis Brown and Associates
                                            
                                            Phone: (919) 972-1180
                                            Durham,  NC
                                                                                        [email protected]
                                                                                        
Featured Mortgage Brokers
- TOP FLITE FINANCIAL INC, WATERFORD, MI
5663 HIGHLAND RD
WATERFORD, MI 48327 - EQUITY LOANS LLC, NEW CITY, NY
216 CONGERS RD STE 3A
NEW CITY, NY 10956 - 203K.TV, LAGUNA HILLS, CA
22501 CAMINITO COSTA
LAGUNA HILLS, CA 92653 - FIRST PRIORITY FINANCIAL INC, BENICIA, CA
1350 HAYES ST STE C14
BENICIA, CA 94510 - NORTHWEST MORTGAGE GROUP INC, PORTLAND, OR
10260 SW GREENBURG RD STE 900
PORTLAND, OR 97223 
