Model Hampstead
Cabarrus County, North Carolina New Homes for Sale
Cabarrus County, North Carolina New Homes for Sale
3 Bedroom, 2.5 Bath, 2 Car Garage
2961 - Square Feet
$253,700
Model Hampstead - Cabarrus County, North Carolina New Homes for Sale
3 Bedroom, 2.5 Bath, 2 Car Garage
2961 - Square Feet
$253,700
Area: Cabarrus County, North Carolina
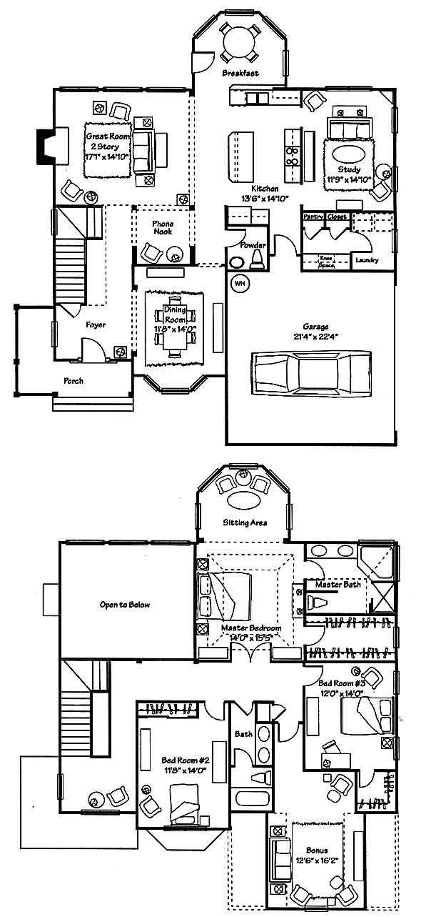
This homes covered front porch welcomes your guests, especially on those rainy days. To the right of the foyer is the dining room accented with architectural columns. The 2 story great room with a wall of windows opens to the kitchen with center island and breakfast area with enough windows to be a sunroom! The study is conveniently tucked away beside the kitchen for privacy. Upstairs, double doors lead you to the master suite featuring a bedroom with tray ceiling, a sunlit sitting area and large walk-in closet. There are 2 additional bedrooms, one with a walk-in closet and a large bonus room completing the upstairs layout.
Please complete the form below to get more information on Model Hampstead and other available new home listings from a local Cabarrus County, North Carolina Real Estate Agent
Contact a local Cabarrus County, NC Real Estate Agent
(Please enter all fields.)
Hampstead in Cabarrus County
Featured New Home
Featured Real Estate Agents
Sarah Moore
RE/MAX Executive Realty

Phone: (704) 508-9220
CONCORD, NC
[email protected]
Leigh Brown
RE/MAX Executive Realty

Phone: (704) 419-8457
Concord, NC
[email protected]
The Ramsey Group
The Ramsey Group at Keller Williams

Phone: (704) 508-9526
Charlotte, NC
[email protected]
Harold Blackwelder
Bestway Realty, Inc.

Phone: (704) 201-6359
Harrisburg, NC
Heather Littrell
Keller Williams

Phone: (704) 508-9350
Kannapolis, NC
[email protected]
Featured Mortgage Brokers
- AMERICAN NATIONWIDE MORTGAGE COMPANY INC, LITTLE RIVER, SC
2220 HIGHWAY 17
LITTLE RIVER, SC 29566 - CHARTER WEST NATIONAL BANK, GRAND ISLAND, NE
714 N DIERS AVE
GRAND ISLAND, NE 68803 - EVERETT FINANCIAL INC, ORANGE BEACH, AL
25910 CANAL RD STE N
ORANGE BEACH, AL 36561 - GENERATION MORTGAGE COMPANY, HILO, HI
1257 KILAUEA AVE STE 30
HILO, HI 96720 - MOVEMENT MORTGAGE LLC, CHARLOTTESVILLE, VA
2271 SEMINOLE LN
CHARLOTTESVILLE, VA 22901
