Model Custom 94
Cabarrus County, North Carolina New Homes for Sale
Cabarrus County, North Carolina New Homes for Sale
3 Bedroom, 2.5 Bath, 2 Car Garage
2373 - Square Feet
$235,900
Model Custom 94 - Cabarrus County, North Carolina New Homes for Sale
3 Bedroom, 2.5 Bath, 2 Car Garage
2373 - Square Feet
$235,900
Area: Cabarrus County, North Carolina
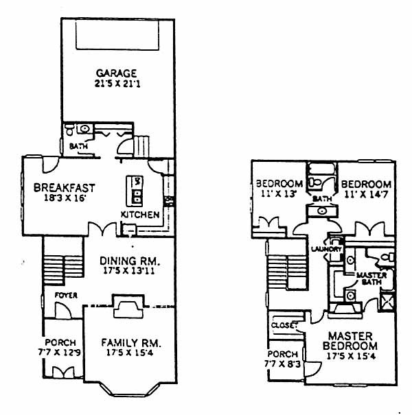
The unusual design of this two-story home fits well into the master plan of the community. The large family room with bow window is situated at the front of the home to take advantage of the streetscape. The kitchen is conveniently located between the formal dining room and breakfast area. Upstairs the plan allows for the master suite to be located in the front of the home with a walk-out porch directly off the bedroom. Also included is a garden tub with a separate shower and dual walk-in closets. The two bedrooms at the back of the home share a full bath.
Please complete the form below to get more information on Model Custom 94 and other available new home listings from a local Cabarrus County, North Carolina Real Estate Agent
Contact a local Cabarrus County, NC Real Estate Agent
(Please enter all fields.)
Custom 94 in Cabarrus County
Featured New Home
Featured Real Estate Agents
Leigh Brown
RE/MAX Executive Realty

Phone: (704) 419-8457
Concord, NC
[email protected]
Tracy Rowland
REMAX Leading Edge

Phone: (704) 236-9752
Concord, NC
[email protected]
The Ramsey Group
The Ramsey Group at Keller Williams

Phone: (704) 508-9526
Charlotte, NC
[email protected]
Sarah Moore
RE/MAX Executive Realty

Phone: (704) 508-9220
CONCORD, NC
[email protected]
Heather Littrell
Keller Williams

Phone: (704) 508-9350
Kannapolis, NC
[email protected]
Featured Mortgage Brokers
- AMERIPRO FUNDING INC, SAN ANTONIO, TX
401 E SONTERRA BLVD STE 375
SAN ANTONIO, TX 78258 - MOVEMENT MORTGAGE LLC, CHARLOTTESVILLE, VA
2271 SEMINOLE LN
CHARLOTTESVILLE, VA 22901 - Harvard Mortgage, mortgage broker in Albuquerque, NM
9551 Paseo del Norte NE
Albuquerque, NM 87122 - PRIMELENDING A PLAINSCAPITAL COMPANY, MELVILLE, NY
200 BROADHOLLOW RD STE 207
MELVILLE, NY 11747 - FIRST PRIORITY FINANCIAL INC, ROSEVILLE, CA
1050 OPPORTUNITY DR STE 145
ROSEVILLE, CA 95678
