Model Oakwood
Arden, North Carolina New Homes for Sale
Arden, North Carolina New Homes for Sale
3 Bedroom, 2 Bath, 2 Car Garage
1601 - Square Feet
$194,500
Model Oakwood - Arden, North Carolina New Homes for Sale
3 Bedroom, 2 Bath, 2 Car Garage
1601 - Square Feet
$194,500
Area: Arden, North Carolina
Here lies an unprecedented opportunity for those who seek golf community living, surrounded by the beauty and charm of a natural, wooded setting. These unique community offers a relaxed atmosphere with gorgeous views and easy access to this well-maintained, gently rolling and walkable course.
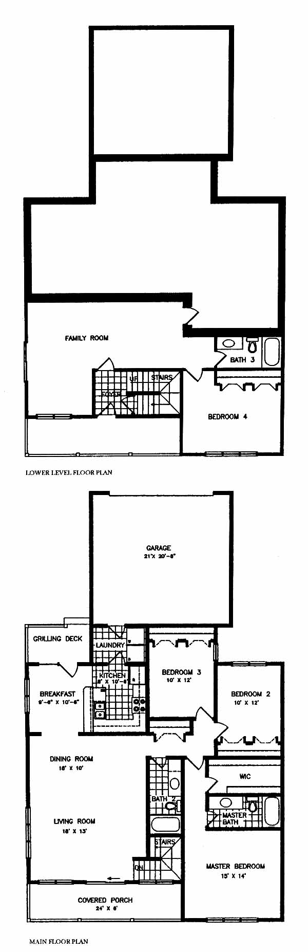
The tiled foyer leads you past the 4th bedroom and bath and into the family room. Upstairs you have the living and dining room area. From the dining room you can access the tiled kitchen with wrap around counter and breakfast area which leads to the grilling deck. Next you'll come to the hall bath, 2nd and 3rd bedrooms and then the massive master bath and bath with walk-in closet.
Please complete the form below to get more information on Model Oakwood and other available new home listings from a local Arden, North Carolina Real Estate Agent
Contact a local Arden, NC Real Estate Agent
(Please enter all fields.)
Oakwood in Arden
Featured New Home
Featured Real Estate Agents
Jeff Stewart
Keller Williams Professionals

Phone: (828) 483-4165
Asheville, NC
Dennis Polk
Keller Williams Professionals

Phone: (828) 989-3155
Asheville, NC
Karen Woodard
Beverly-Hanks and Associates

Phone: (828) 475-8588
Asheville, NC
Vivien Snyder
Beverly-Hanks, Biltmore Park

Phone: (828) 712-4397
Asheville, NC
[email protected]
Candy Whitt
Candy Whitt and Associates

Phone: (828) 358-1236
Arden, NC
[email protected]
Featured Mortgage Brokers
- NORTHWEST MORTGAGE GROUP INC, PORTLAND, OR
10260 SW GREENBURG RD STE 900
PORTLAND, OR 97223 - FIRST PREFERENCE MTG CORP, BOWIE, MD
1525 POINTER RIDGE PL
BOWIE, MD 20716 - REVERSE MORTGAGE SOLUTIONS INC, BETHESDA, MD
6701 DEMOCRACY BLVD STE 300
BETHESDA, MD 20817 - PRIMARY RESIDENTIAL MORTGAGE INC, SAN FRANCISCO, CA
1746 18TH ST
SAN FRANCISCO, CA 94107 - EMBRACE HOME LOANS INC, MIDDLETOWN, RI
25 ENTERPRISE CTR
MIDDLETOWN, RI 2842
