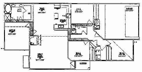
Model Plan 1724
Los Ranchos De Albuquerque, New Mexico New Homes for Sale
Los Ranchos De Albuquerque, New Mexico New Homes for Sale
4 Bedroom, 2 Bath, 2 Car Garage
1724 - Square Feet
$138,000
Model Plan 1724 - Los Ranchos De Albuquerque, New Mexico New Homes for Sale
4 Bedroom, 2 Bath, 2 Car Garage
1724 - Square Feet
$138,000
Area: Los Ranchos De Albuquerque, New Mexico
Master bedroom, Great room and dining room have cathedral ceilings, the other three bedrooms have vaulted ceilings. Optional fireplace in the great room.
Please complete the form below to get more information on Model Plan 1724 and other available new home listings from a local Los Ranchos De Albuquerque, New Mexico Real Estate Agent
Contact a local Los Ranchos De Albuquerque, NM Real Estate Agent
(Please enter all fields.)
Plan 1724 in Los Ranchos De Albuquerque
Featured New Home
Featured Real Estate Agents
Dario Gonzales
Keller Williams Realty

Phone: (505) 699-1169
Albuquerque, NM
Pete Veres
RE/MAX Elite -Elite Asset Mgt. Team

Phone: (505) 339-2026
Albuquerque, NM
[email protected]
Evan Schuster
Keller Williams Realty

Phone: (505) 985-7039
Albuquerque, NM
Mark Carlisle
Berkshire Hathaway Allstar REALTORS

Phone: (505) 398-2101
Rio Rancho, NM
[email protected]
Alfonso Salazar 505-450-3779
Realty One of New Mexico

Phone: (505) 395-2748
Albuquerque, NM
[email protected]
Featured Mortgage Brokers
- TOP FLITE FINANCIAL INC, WATERFORD, MI
5663 HIGHLAND RD
WATERFORD, MI 48327 - HIGH TECH LENDING INC, CITRUS HEIGHTS, CA
7777 GREENBACK LN STE 210
CITRUS HEIGHTS, CA 95610 - NEW DAY FINANCIAL LLC, FULTON, MD
8171 MAPLE LAWN BLVD STE 300
FULTON, MD 20759 - BancOhio Financial, mortgage broker in Powell, OH
285 S Liberty St
Powell, OH 43065 - FIDELITY BANK, ATHENS, GA
1045 S MILLEDGE AVE STE 200
ATHENS, GA 30605
