Model Baneberry SW
Los Ranchos De Albuquerque, New Mexico New Homes for Sale
Los Ranchos De Albuquerque, New Mexico New Homes for Sale
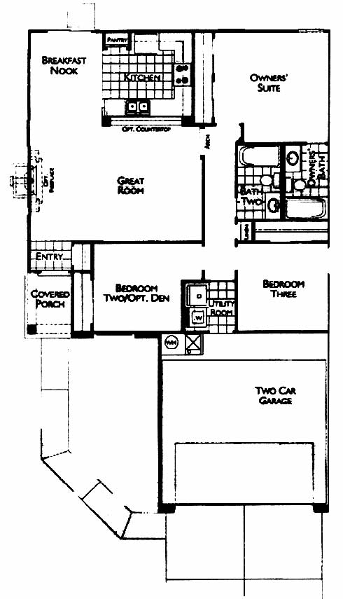
3 Bedroom, 2 Bath, 2 Car Garage
1175 - Square Feet
$102,000
Model Baneberry SW - Los Ranchos De Albuquerque, New Mexico New Homes for Sale
3 Bedroom, 2 Bath, 2 Car Garage
1175 - Square Feet
$102,000
Area: Los Ranchos De Albuquerque, New Mexico
Located on the Southwest Mesa this subdivision has very affordable pueblo style homes. Parks nearby make this a family community. Convenient to I-40, downtown and Route 66.
This single story home is the contemporary southwest elevation of this plan. This home is inviting from the outside in. A covered porch leads into a Great room, with fireplace option, adjoins to breakfast nook. The open kitchen overlooks the Great room. Nice Owner's suite with wall to wall closet and connecting full bath. Bedroom 2 can also option as a Den off the Great room. Nice functional plan.
Please complete the form below to get more information on Model Baneberry SW and other available new home listings from a local Los Ranchos De Albuquerque, New Mexico Real Estate Agent
Contact a local Los Ranchos De Albuquerque, NM Real Estate Agent
(Please enter all fields.)
Baneberry SW in Los Ranchos De Albuquerque
Featured New Home
Featured Real Estate Agents
Alfonso Camargo
Keller Williams Realty

Phone: (505) 382-4772
Albuquerque, NM
Evan Schuster
Keller Williams Realty

Phone: (505) 985-7039
Albuquerque, NM
Tracy and Tego Venturi
The Venturi Team - Keller Williams

Phone: (505) 219-2111
Albuquerque, NM
Alfonso Salazar 505-450-3779
Realty One of New Mexico

Phone: (505) 395-2748
Albuquerque, NM
[email protected]
Mark Carlisle
Berkshire Hathaway Allstar REALTORS

Phone: (505) 398-2101
Rio Rancho, NM
[email protected]
Featured Mortgage Brokers
- PRIMELENDING A PLAINSCAPITAL COMPANY, MELVILLE, NY
200 BROADHOLLOW RD STE 207
MELVILLE, NY 11747 - FIRST HOME MORTGAGE CORP, MILLERSVILLE, MD
8638 VETERANS HWY STE 300
MILLERSVILLE, MD 21108 - HIGH TECH LENDING INC, CITRUS HEIGHTS, CA
7777 GREENBACK LN STE 210
CITRUS HEIGHTS, CA 95610 - RESIDENTIAL HOME FUNDING CORPORATION, BLUE BELL, PA
1787 SENTRY PKWY W BLDG 18-130
BLUE BELL, PA 19422 - INDEPENDENT BANK, MT PLEASANT, MI
319 E BROADWAY ST
MT PLEASANT, MI 48858
