Model Plan 1481
Bernalillo County, New Mexico New Homes for Sale
Bernalillo County, New Mexico New Homes for Sale
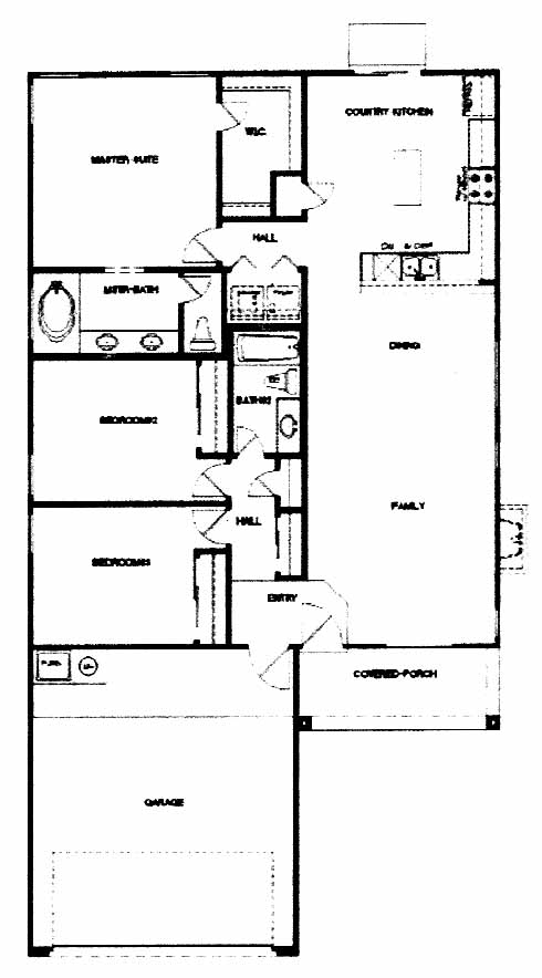
3 Bedroom, 2 Bath, 2 Car Garage
1481 - Square Feet
$114,000
Model Plan 1481 - Bernalillo County, New Mexico New Homes for Sale
3 Bedroom, 2 Bath, 2 Car Garage
1481 - Square Feet
$114,000
Area: Bernalillo County, New Mexico
Located on the Southwest mesa, with easy access to I-40, Route 66 and downtown Albuquerque. This community offers stunning views and beautiful sunsets in the western sky.
This single level traditional style stucco home is cute as can be. Tiled entryway leads into the family/dining room combination. Country kitchen overlooks the family/dining area with a serving bar. Master suite with large walk-in closet is located at the rear of the home. Master bath has dual vanities and a garden tub. Generous size bedrooms accessed from another hallway with bathroom are a nice separate retreat for guests and/or children.
Please complete the form below to get more information on Model Plan 1481 and other available new home listings from a local Bernalillo County, New Mexico Real Estate Agent
Contact a local Bernalillo County, NM Real Estate Agent
(Please enter all fields.)
Plan 1481 in Bernalillo County
Featured New Home
Featured Real Estate Agents
Matt Templeton
Keller Williams - Templeton Team

Phone: (505) 431-4722
Albuquerque, NM
[email protected]
Heather Meadows
Desert Meadows Real Estate

Phone: (505) 553-2602
Albuquerque, NM
[email protected]
Steve and Marcy Blunier
Keller Williams Realty

Phone: (505) 600-3170
Albuquerque, NM
Will Beecher CRS, GRI
Keller Williams Realty

Phone: (505) 322-6660
Albuquerque, NM
[email protected]
Evan Schuster
Keller Williams Realty

Phone: (505) 985-7039
Albuquerque, NM
Featured Mortgage Brokers
- TOP FLITE FINANCIAL INC, FORT LAUDERDALE, FL
33 NE 2ND ST STE 100
FORT LAUDERDALE, FL 33301 - PRIMELENDING A PLAINSCAPITAL COMPANY, GLEN ALLEN, VA
4198 COX RD STE 113
GLEN ALLEN, VA 23060 - GENERATION MORTGAGE COMPANY, ATLANTA, GA
3 PIEDMONT CTR NE STE 300
ATLANTA, GA 30305 - MANN MORTGAGE LLC, LEWISTON, ID
247 THAIN RD STE 104
LEWISTON, ID 83501 - FIRST PRIORITY FINANCIAL INC, BENICIA, CA
1350 HAYES ST STE C14
BENICIA, CA 94510
