Model Adams
Monmouth County, New Jersey New Homes for Sale
Monmouth County, New Jersey New Homes for Sale
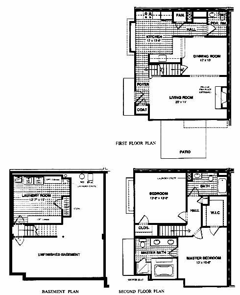
2 Bedroom, 2.5 Bath, Car Garage
1678 - Square Feet
$265,370
Model Adams - Monmouth County, New Jersey New Homes for Sale
2 Bedroom, 2.5 Bath, Car Garage
1678 - Square Feet
$265,370
Area: Monmouth County, New Jersey
This gorgeous community is conveniently located within miles of the freeway, downtown, shopping and entertainment.
The first floor features a large living room with an optional pre-fab fireplace, lovely dining room and tiled kitchen with pantry and wrap around counter. On the second floor you'll find the 2nd bedroom with bath and the impressive master bedroom and bath with dual vanities. This home also has an unfinished basement with spacious laundry room.
Please complete the form below to get more information on Model Adams and other available new home listings from a local Monmouth County, New Jersey Real Estate Agent
Contact a local Monmouth County, NJ Real Estate Agent
(Please enter all fields.)
Adams in Monmouth County
Featured New Home
Featured Mortgage Brokers
- ACADEMY MORTGAGE CORPORATION, CHICO, CA
1600 MANGROVE AVE STE 100
CHICO, CA 95926 - VENTA FINANCIAL GROUP INC, LAS VEGAS, NV
1300 S JONES BLVD STE 150
LAS VEGAS, NV 89146 - Ross Mortgage Corporation, mortgage broker in Royal Oak, MI
27862 Woodward Avenue
Royal Oak, MI 48067 - PRIMELENDING A PLAINSCAPITAL COMPANY, INDIANAPOLIS, IN
50 E 91ST ST STE 300
INDIANAPOLIS, IN 46240 - AMERIPRO FUNDING INC, SAN ANTONIO, TX
401 E SONTERRA BLVD STE 375
SAN ANTONIO, TX 78258
