Model Siena
Marlboro, New Jersey New Homes for Sale
Marlboro, New Jersey New Homes for Sale
4 Bedroom, 3.5 Bath, 2 Car Garage
3514 - Square Feet
$462,900
Model Siena - Marlboro, New Jersey New Homes for Sale
4 Bedroom, 3.5 Bath, 2 Car Garage
3514 - Square Feet
$462,900
Area: Marlboro, New Jersey
This gorgeous tree-lined community is conveniently located within miles of the freeway, downtown, shopping and entertainment. Residents will also enjoy 3 beautiful man made lakes and Belgian block curbing.
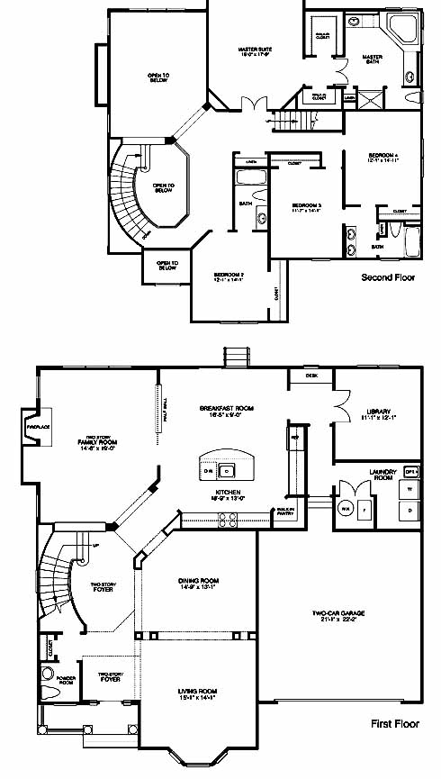
The two story foyer takes you past the living and dining room and into the two story family room with fireplace. From here you can access the kitchen with island and breakfast room which leads to the lovely library. On the second floor you'll find the 2nd bedroom with bath, 3rd and 4th bedrooms with Jack and Jill bath and the massive master suite with his and her walk-in closets and master bath with dual vanities.
Please complete the form below to get more information on Model Siena and other available new home listings from a local Marlboro, New Jersey Real Estate Agent
Contact a local Marlboro, NJ Real Estate Agent
(Please enter all fields.)
Siena in Marlboro
Featured New Home
Featured Real Estate Agents
Alan Kurlander
Marlboro/Manalapan Office

Phone: (732) 654-2019
Manalapan, NJ
[email protected]
Katie Kelliher
Coldwell Banker

Phone: (201) 645-3489
Holmdel, NJ
Lori Bocchieri-Bennett
REMAX CENTRAL

Phone: (732) 490-7019
Manalapan, NJ
[email protected]
Lydia Chen
Heritage House Sotheby s Realty

Phone: (732) 810-0098
Holmdel, NJ
[email protected]
Jodi Goldberg
Remax Central

Phone: (908) 304-9407
Manalapan, NJ
[email protected]
Featured Mortgage Brokers
- TOP FLITE FINANCIAL INC, WATERFORD, MI
5663 HIGHLAND RD
WATERFORD, MI 48327 - RESIDENTIAL HOME FUNDING CORPORATION, BLUE BELL, PA
1787 SENTRY PKWY W BLDG 18-130
BLUE BELL, PA 19422 - INLANTA MORTGAGE, INC., OAK BROOK, IL
2803 BUTTERFIELD RD STE 130
OAK BROOK, IL 60523 - American Finance-Thomasville, mortgage broker in Thomasville, GA
15179 US Hwy 19 South
Thomasville, GA 31792 - COBALT MORTGAGE, EVERETT, WA
2825 COLBY AVE STE 305
EVERETT, WA 98201
