Model Hampton II elev 2
Bergen And Passaic Counties, New Jersey New Homes for Sale
Bergen And Passaic Counties, New Jersey New Homes for Sale
4 Bedroom, 2.5 Bath, 2 Car Garage
3390 - Square Feet
$692,900
Model Hampton II elev 2 - Bergen And Passaic Counties, New Jersey New Homes for Sale
4 Bedroom, 2.5 Bath, 2 Car Garage
3390 - Square Feet
$692,900
Area: Bergen And Passaic Counties, New Jersey
This luxurious community is nestled in a secure and private enclave surrounded by rolling hills. You will feel as though you're in the heart of the country as acres of nature reserve and wooded areas reinforce the rustic ambiance. Yet it's close to Manhattan, easily accessible to public transportation, and only minutes from recreation, business centers, shopping and restaurants.
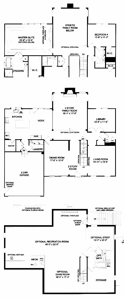
The 2 story foyer flanked by the living and dining room takes you into the 2 story family room with fireplace. From here you can access the library and the kitchen with island and breakfast nook. Upstairs you'll find the 2nd bedroom with bath, 3rd and 4th bedrooms with Jack and Jill bath and the impressive master suite and bath with a walk-in closet.
Please complete the form below to get more information on Model Hampton II elev 2 and other available new home listings from a local Bergen And Passaic Counties, New Jersey Real Estate Agent
Contact a local Bergen And Passaic Counties, NJ Real Estate Agent
(Please enter all fields.)
Hampton II elev 2 in Bergen And Passaic Counties
Featured New Home
Featured Real Estate Agents
Shawn Anen
Better Homes and Gardens Rand Realty

Phone: (973) 434-7096
Wayne, NJ
Pina Nazario
Coldwell Banker Residential Brokerage

Phone: (973) 886-6258
Clifton, NJ
Gene Lowe
Better Homes and Gardens/Preakness Group

Phone: (973) 583-3720
Wayne, NJ
John Pordon
Century 21 Gold Properties

Phone: (201) 247-2759
Totowa, NJ
[email protected]
Timothy Waller
Coldwell Banker

Phone: (973) 556-4745
Wayne, NJ
[email protected]
Featured Mortgage Brokers
- FIDELITY BANK, ATHENS, GA
1045 S MILLEDGE AVE STE 200
ATHENS, GA 30605 - ALCOVA MORTGAGE LLC, ROANOKE, VA
305 MARKET ST SE STE 204
ROANOKE, VA 24011 - PRIMELENDING A PLAINSCAPITAL COMPANY, NORTH SYRACUSE, NY
6702 BUCKLEY RD STE 140
NORTH SYRACUSE, NY 13212 - RESIDENTIAL HOME FUNDING CORPORATION, BLUE BELL, PA
1787 SENTRY PKWY W BLDG 18-130
BLUE BELL, PA 19422 - CSTONE MORTGAGE INC, SAN DIEGO, CA
4545 MURPHY CANYON RD STE 213
SAN DIEGO, CA 92123
