Model Gardenia
Southwest Las Vegas, Nevada New Homes for Sale
Southwest Las Vegas, Nevada New Homes for Sale
5 Bedroom, 3.5 Bath, 3 Car Garage
3099 Square Feet
$609,000
Model Gardenia - Southwest Las Vegas, Nevada New Homes for Sale
5 Bedroom, 3.5 Bath, 3 Car Garage
3099 Square Feet
$609,000
Area: Southwest Las Vegas, Nevada
This is the most dynamic and best selling master-planned community in the country. Residents can live, shop, work and learn all in one interrogated community.
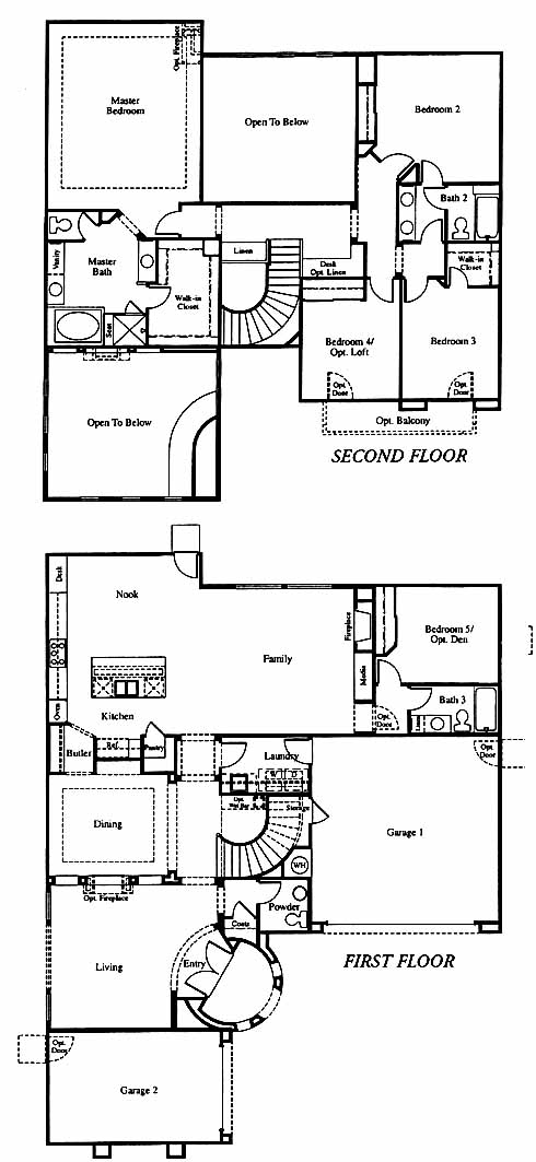
The entry takes you past the living and dining room just before you come to the family room with fireplace and media niche. From here you can access the 5th bedroom with bath and kitchen with island and nook. Upstairs you'll find the 2nd and 3rd bedrooms with Jack and Jill bath, 4th bedroom and the stunning master e bedroom and bath with a walk-in closet.
Please complete the form below to get more information on Model Gardenia and other available new home listings from a local Southwest Las Vegas, Nevada Real Estate Agent
Contact a local Southwest Las Vegas, NV Real Estate Agent
(Please enter all fields.)
Gardenia in Southwest Las Vegas
Featured New Home
Featured Mortgage Brokers
- BANK OF NORTH CAROLINA, CHARLOTTE, NC
7422 CARMEL EXECUTIVE PARK DR
CHARLOTTE, NC 28226 - PINNACLE CAPITAL MORTGAGE CORPORATION, PUYALLUP, WA
311 RIVER RD STE 202
PUYALLUP, WA 98371 - PRIMELENDING A PLAINSCAPITAL COMPANY, NORTH SYRACUSE, NY
6702 BUCKLEY RD STE 140
NORTH SYRACUSE, NY 13212 - DITECH MORTGAGE CORP, FORT WASHINGTON, PA
1100 VIRGINIA DR STE 100
FORT WASHINGTON, PA 19034 - M/I Financial, LLC, mortgage broker in Columbus, OH
3 Easton Oval Ste 340
Columbus, OH 43219
