Model Valencia
Reno, Nevada New Homes for Sale
Reno, Nevada New Homes for Sale
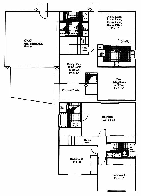
3 Bedroom, 2.5 Bath, 2 Car Garage
1540 Square Feet
$220,900
Model Valencia - Reno, Nevada New Homes for Sale
3 Bedroom, 2.5 Bath, 2 Car Garage
1540 Square Feet
$220,900
Area: Reno, Nevada
This modern and affordable community features tree lines cul-de-sacs, safe pedestrian and bicycle access and an impressive village center.
The entry flanked by the living and dining room takes you into the bonus room. Open to the bonus room is the kitchen with pantry. Upstairs you have 2 bedrooms and the master bedroom and bath.
Please complete the form below to get more information on Model Valencia and other available new home listings from a local Reno, Nevada Real Estate Agent
Contact a local Reno, NV Real Estate Agent
(Please enter all fields.)
Valencia in Reno
Featured New Home
Featured Real Estate Agents
Ken Scott-ABR, CDPE, CRS
RE/MAX Realty Affiliates

Phone: (775) 344-4089
Reno, NV
[email protected]
Harcourts NV1 Realty
Harcourts NV1 Realty

Phone: (775) 545-4006
Reno, NV
[email protected]
Alan Hoffman and Magda Martinez
HomeGate Realty

Phone: (775) 600-4172
Reno, NV
[email protected]
Justin Hertz
ReMax Realty Affiliates

Phone: (775) 223-7555
Reno, NV
Jack Cote
Chase International Real Estate

Phone: (775) 341-4264
Reno, NV
[email protected]
Featured Mortgage Brokers
- NORTHWEST MORTGAGE GROUP INC, PORTLAND, OR
10260 SW GREENBURG RD STE 900
PORTLAND, OR 97223 - BANK OF AMERICA NA CHARLOTTE, FOREST HILLS, NY
10510 QUEENS BLVD STE 2
FOREST HILLS, NY 11375 - GENERATION MORTGAGE COMPANY, HILO, HI
1257 KILAUEA AVE STE 30
HILO, HI 96720 - WESTSTAR MORTGAGE CORP, TUMWATER, WA
2620 R W JOHNSON RD SW # 104
TUMWATER, WA 98512 - FINANCIAL FREEDOM ACQUISITION LLC, IRVINE, CA
1 BANTING
IRVINE, CA 92618
