Model Villa C II
Reno, Nevada New Homes for Sale

Reno, Nevada New Homes for Sale
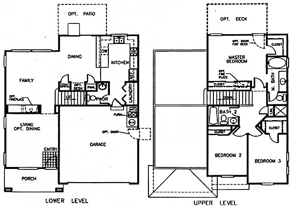
3 Bedroom, 2.5 Bath, 2 Car Garage
1587 - Square Feet
$209,250
Model Villa C II - Reno, Nevada New Homes for Sale
3 Bedroom, 2.5 Bath, 2 Car Garage
1587 - Square Feet
$209,250
Area: Reno, Nevada
You will love this two-story home with its high volume ceilings in the living room, nice serving counter off of the kitchen, the powder room is accessible from the garage, niches in the master suite. Built in a master planned golf course community, conveniently close to quality schools, parks, walking paths, shopping, downtown Sparks, and easy access to freeways.
Please complete the form below to get more information on Model Villa C II and other available new home listings from a local Reno, Nevada Real Estate Agent
Contact a local Reno, NV Real Estate Agent
(Please enter all fields.)
Villa C II in Reno
Featured New Home

Featured Real Estate Agents
Jack Cote
Chase International Real Estate
Phone: (775) 341-4264
Reno, NV
[email protected]
Guy Johnson
Keller Williams Group One, Inc.
Phone: (775) 722-4011
Reno, NV
[email protected]
Harcourts NV1 Realty
Harcourts NV1 Realty
Phone: (775) 545-4006
Reno, NV
[email protected]
Michael Wood
Re/Max Realty Affiliates
Phone: (775) 570-4738
Reno, NV
[email protected]
Justin Hertz
Featured Mortgage Brokers
- CATALYST LENDING INC, GREENWOOD VILLAGE, CO
6530 S YOSEMITE ST STE 310
GREENWOOD VILLAGE, CO 80111 - MOVEMENT MORTGAGE LLC, COLUMBIA, SC
1129 SPARKLEBERRY LANE EXT
COLUMBIA, SC 29223 - PROFICIO MORTGAGE VENTURES LLC, BRUNSWICK, OH
2950 WESTWAY DR STE 101
BRUNSWICK, OH 44212 - AMERICAN NATIONWIDE MORTGAGE COMPANY INC, LITTLE RIVER, SC
2220 HIGHWAY 17
LITTLE RIVER, SC 29566 - OPEN MORTGAGE LLC, CORONA, CA
1840 ROCKCREST DR
CORONA, CA 92880