Model Horizon
Northwest Las Vegas, Nevada New Homes for Sale
Northwest Las Vegas, Nevada New Homes for Sale
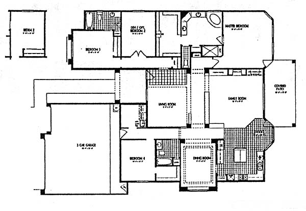
4 Bedroom, 2.5 Bath, 3 Car Garage
2881 - Square Feet Heat and Air
$550,000
Model Horizon - Northwest Las Vegas, Nevada New Homes for Sale
4 Bedroom, 2.5 Bath, 3 Car Garage
2881 - Square Feet Heat and Air
$550,000
Area: Northwest Las Vegas, Nevada
The elegance of this home is immediately noticeable. Sunken dining room, breakfast nook, kitchen island and pantry. Optional loft. Rear covered patio. Well known master planned community, with excellent amenities such as pool, walking trails, tennis, clubhouse and more. Conveniently located in an elite neighborhood.
Please complete the form below to get more information on Model Horizon and other available new home listings from a local Northwest Las Vegas, Nevada Real Estate Agent
Contact a local Northwest Las Vegas, NV Real Estate Agent
(Please enter all fields.)
Horizon in Northwest Las Vegas
Featured New Home
Featured Mortgage Brokers
- PRIMARY RESIDENTIAL MORTGAGE INC, BALTIMORE, MD
1816 ALICEANNA ST # B
BALTIMORE, MD 21231 - CARRINGTON MORTGAGE SERVICES LLC, SANTA ANA, CA
1610 E SAINT ANDREW PL STE B-1
SANTA ANA, CA 92705 - FIRST PRIORITY FINANCIAL INC, ROSEVILLE, CA
1050 OPPORTUNITY DR STE 145
ROSEVILLE, CA 95678 - HIGH TECH LENDING INC, CITRUS HEIGHTS, CA
7777 GREENBACK LN STE 210
CITRUS HEIGHTS, CA 95610 - CARLILE PROPERTIES, SACRAMENTO, CA
1009 22ND STREET, 3A
SACRAMENTO, CA 95816
