Model Plan 1260
Boulder City, Nevada New Homes for Sale
Boulder City, Nevada New Homes for Sale
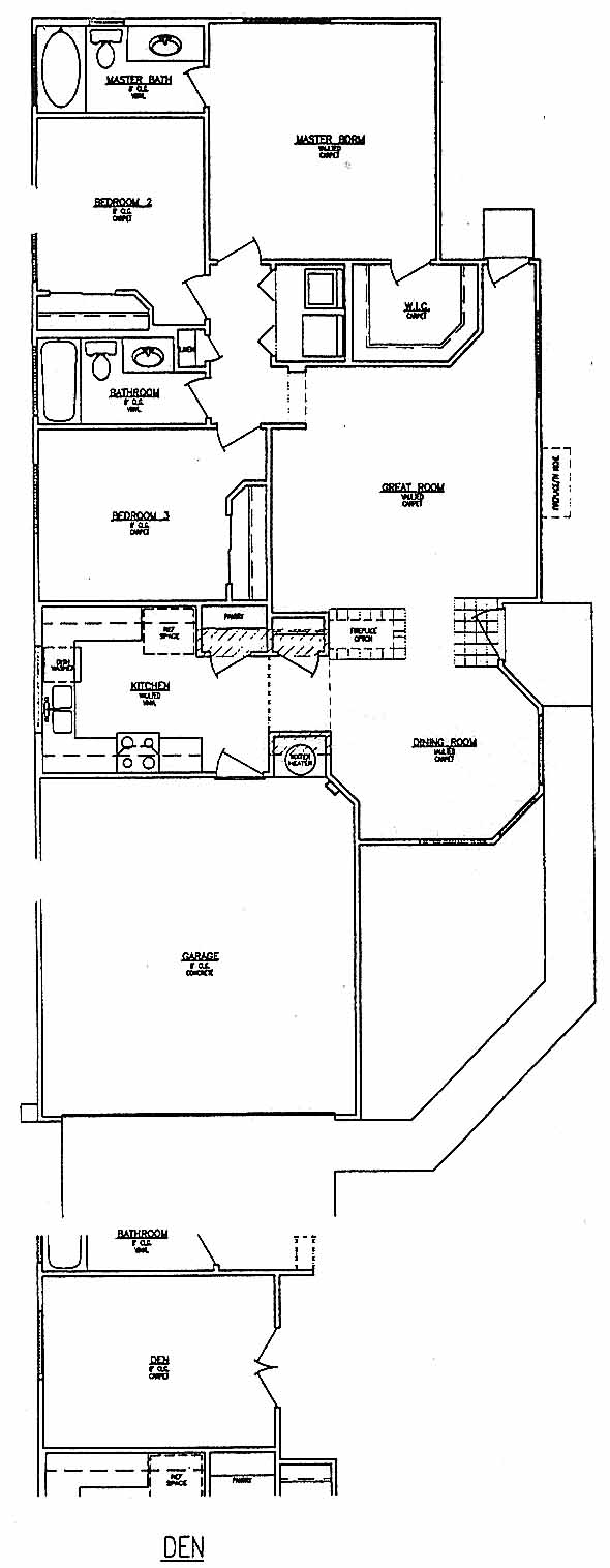
3 Bedroom, 2 Bath, 2 Car Garage
1260 - Square Feet
$259,990
Model Plan 1260 - Boulder City, Nevada New Homes for Sale
3 Bedroom, 2 Bath, 2 Car Garage
1260 - Square Feet
$259,990
Area: Boulder City, Nevada
This affordable yet spacious single story allows the option of a den in place of that 3rd bedroom. The great room with dramatic cathedral ceilings allows the space for family get togethers. The gourmet step saver kitchen opns to the family sized dining room with designer windows overlooking the front yard.
Please complete the form below to get more information on Model Plan 1260 and other available new home listings from a local Boulder City, Nevada Real Estate Agent
Contact a local Boulder City, NV Real Estate Agent
(Please enter all fields.)
Plan 1260 in Boulder City
Featured New Home
Featured Real Estate Agents
Amber Bartholomew
Desert Sun Realty

Phone: (702) 919-6725
Boulder City, NV
Red Mountain Realty
Red Mountain Realty

Phone: (702) 919-6817
Boulder City, NV
Kim Melendez
BC Adobe Realty

Phone: (702) 728-4124
Boulder City, NV
[email protected]
Lisa Morris
Desert Sun Realty

Phone: (702) 336-9612
Boulder City, NV
Chelsea Scheppmann
Loudin Group at Dick Blair Realty

Phone: (702) 919-6674
Boulder City, NV
[email protected]
Featured Mortgage Brokers
- MOVEMENT MORTGAGE LLC, COLUMBIA, SC
1129 SPARKLEBERRY LANE EXT
COLUMBIA, SC 29223 - M/I Financial, LLC, mortgage broker in Columbus, OH
3 Easton Oval Ste 340
Columbus, OH 43219 - MOVEMENT MORTGAGE LLC, CHARLOTTESVILLE, VA
2271 SEMINOLE LN
CHARLOTTESVILLE, VA 22901 - FIDELITY BANK, ATHENS, GA
1045 S MILLEDGE AVE STE 200
ATHENS, GA 30605 - REVERSE MORTGAGE SOLUTIONS INC, BETHESDA, MD
6701 DEMOCRACY BLVD STE 300
BETHESDA, MD 20817
