Model Pine
Washtenaw County, Michigan New Homes for Sale
Washtenaw County, Michigan New Homes for Sale
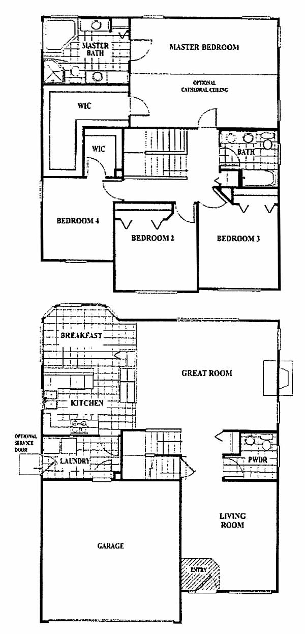
4 Bedroom, 2.5 Bath, 2 Car Garage
2200 - Square Feet
$216,400
Model Pine - Washtenaw County, Michigan New Homes for Sale
4 Bedroom, 2.5 Bath, 2 Car Garage
2200 - Square Feet
$216,400
Area: Washtenaw County, Michigan
This community has tree-lined streets and a children's play area. Stroll through the neighborhood safely with sidewalks throughout. Close to area shopping, schools and restaurants.
This home has large rooms, including a great room with fireplace that is perfect for entertaining guests. Kitchen has lots of counter space for preparing food. Breakfast area is a nice spot to eat any meal. Second-floor master suite includes private bath and oversized walk-in closets. Three other bedrooms share a bath with double vanity.
Please complete the form below to get more information on Model Pine and other available new home listings from a local Washtenaw County, Michigan Real Estate Agent
Contact a local Washtenaw County, MI Real Estate Agent
(Please enter all fields.)
Pine in Washtenaw County
Featured New Home
Featured Mortgage Brokers
- EVOLVE BANK & TRUST, TULSA, OK
5110 S YALE AVE STE 500
TULSA, OK 74135 - MOVEMENT MORTGAGE LLC, FREDERICKSBURG, VA
4920 SOUTHPOINT DR
FREDERICKSBURG, VA 22407 - Blue Square Mortgage LLC, mortgage broker in Seattle, WA
4212 33rd Ave W
Seattle, WA 98199 - CARRINGTON MORTGAGE SERVICES LLC, SANTA ANA, CA
1610 E SAINT ANDREW PL STE B-1
SANTA ANA, CA 92705 - Consolidated Loan Company of Albany- Home Office, mortgage broker in Albany, GA
430 W Tift Ave
Albany, GA 31701
