Model Kingsbrook
New Palestine, Indiana New Homes for Sale
New Palestine, Indiana New Homes for Sale
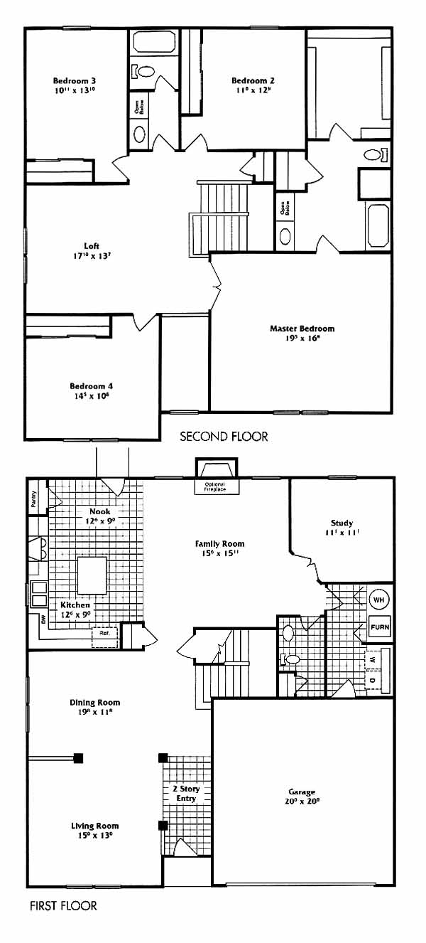
4 Bedroom, 2.5 Bath, 2 Car Garage
2457 - Square Feet
$154,990
Model Kingsbrook - New Palestine, Indiana New Homes for Sale
4 Bedroom, 2.5 Bath, 2 Car Garage
2457 - Square Feet
$154,990
Area: New Palestine, Indiana
This community is nestled between lakes and pristine 4-acre woods. A community swimming pool, bath house and playground are just a few of the amenities that this wonderful neighborhood has to offer. This community is also very convenient to shopping and allows for easy access to major highways and downtown.
The foyer flanked by living and dining rooms takes you past the powder room and into the family room. From the family room you can access the kitchen with pantry and breakfast nook. Upstairs you'll find the 2nd, 3rd and 4th bedrooms with walk-in closets, loft area and the master bedroom with walk-in closet and master bath.
Please complete the form below to get more information on Model Kingsbrook and other available new home listings from a local New Palestine, Indiana Real Estate Agent
Contact a local New Palestine, IN Real Estate Agent
(Please enter all fields.)
Kingsbrook in New Palestine
Featured New Home
Featured Real Estate Agents
Marji Legault
Legault Real Estate

Phone: (317) 442-1215
Indianapolis, IN
Patrick Davidson
The Cooper Real Estate Group

Phone: (317) 793-2668
Indianapolis, IN
Leigh Turner
ReMax Realty Group

Phone: (317) 975-1064
New Palestine, IN
The Hergott Group
Highgarden Real Estate

Phone: (317) 793-2687
Indianapolis, IN
Jim Perry
Front Porch Real Estate

Phone: (317) 281-9239
New Palestine, IN
Featured Mortgage Brokers
- CHARTER WEST NATIONAL BANK, GRAND ISLAND, NE
714 N DIERS AVE
GRAND ISLAND, NE 68803 - EVOLVE BANK & TRUST, TULSA, OK
5110 S YALE AVE STE 500
TULSA, OK 74135 - WESTSTAR MORTGAGE CORP, TUMWATER, WA
2620 R W JOHNSON RD SW # 104
TUMWATER, WA 98512 - TALMER BANK & TRUST, TROY, MI
2301 W BIG BEAVER RD STE 525
TROY, MI 48084 - HIGH TECH LENDING INC, CITRUS HEIGHTS, CA
7777 GREENBACK LN STE 210
CITRUS HEIGHTS, CA 95610
