Model Grayson II
New Palestine, Indiana New Homes for Sale
New Palestine, Indiana New Homes for Sale
4 Bedroom, 2.5 Bath, 2 Car Garage
2385 - Square Feet
$183,500
Model Grayson II - New Palestine, Indiana New Homes for Sale
4 Bedroom, 2.5 Bath, 2 Car Garage
2385 - Square Feet
$183,500
Area: New Palestine, Indiana
This community is nestled between lakes and pristine 4-acre woods. It also features a community pool, and larger home sites than most other new home communities!
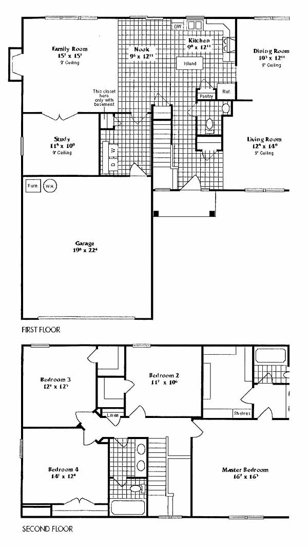
The tiled entry takes you past the living and powder room and into the kitchen with island and breakfast nook. From the kitchen you can access the lovely dining room and the spacious family room which leads to the study. Upstairs you'll find the 2nd, 3rd and 4th bedrooms, hall bath and the master bedroom and bath with walk-in closet and dual vanities.
Please complete the form below to get more information on Model Grayson II and other available new home listings from a local New Palestine, Indiana Real Estate Agent
Contact a local New Palestine, IN Real Estate Agent
(Please enter all fields.)
Grayson II in New Palestine
Featured New Home
Featured Real Estate Agents
Gina L. Rininger
F.C. Tucker Company

Phone: (317) 997-4663
Indianapolis, IN
Leigh Turner
ReMax Realty Group

Phone: (317) 975-1064
New Palestine, IN
Patrick Davidson
The Cooper Real Estate Group

Phone: (317) 793-2668
Indianapolis, IN
Marji Legault
Legault Real Estate

Phone: (317) 442-1215
Indianapolis, IN
Jim Perry
Front Porch Real Estate

Phone: (317) 281-9239
New Palestine, IN
Featured Mortgage Brokers
- American Finance-Thomasville, mortgage broker in Thomasville, GA
15179 US Hwy 19 South
Thomasville, GA 31792 - VENTA FINANCIAL GROUP INC, LAS VEGAS, NV
1300 S JONES BLVD STE 150
LAS VEGAS, NV 89146 - Harvard Mortgage, mortgage broker in Albuquerque, NM
9551 Paseo del Norte NE
Albuquerque, NM 87122 - LEGACYTEXAS BANK, PLANO, TX
5000 LEGACY DR FL 1
PLANO, TX 75024 - AMERICAN PACIFIC MORTGAGE, VISTA, CA
380 S MELROSE DR STE 203
VISTA, CA 92081
