Model Plan 2236
Morgan County, Indiana New Homes for Sale
Morgan County, Indiana New Homes for Sale
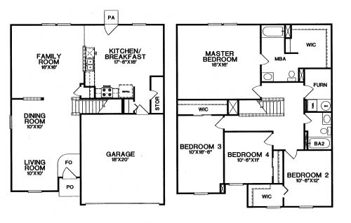
4 Bedroom, 2 Bath, 2 Car Garage
2236 - Square Feet
$110,250
Model Plan 2236 - Morgan County, Indiana New Homes for Sale
4 Bedroom, 2 Bath, 2 Car Garage
2236 - Square Feet
$110,250
Area: Morgan County, Indiana
This is one of the most unique master-planned communities you'll ever get a chance to see. With a variety of homes to choose from and an array of shopping and services just minutes from your door, this is the community for you.
The living and dining room area greets you as soon as you enter the home. Next you'll come to the large family room which leads to the kitchen with pantry, breakfast area. On the second floor you have the 2nd, 3rd and 4th bedrooms, hall bath and the impressive master bedroom and bath with a walk-in closet.
Please complete the form below to get more information on Model Plan 2236 and other available new home listings from a local Morgan County, Indiana Real Estate Agent
Contact a local Morgan County, IN Real Estate Agent
(Please enter all fields.)
Plan 2236 in Morgan County
Featured New Home
Featured Mortgage Brokers
- DITECH MORTGAGE CORP, FORT WASHINGTON, PA
1100 VIRGINIA DR STE 100
FORT WASHINGTON, PA 19034 - AMERICAN MIDWEST MTG CORP, CLEVELAND, OH
6363 YORK RD STE 300
CLEVELAND, OH 44130 - FIRST HERITAGE FINANCIAL, LLC, TREVOSE, PA
2655 NESHAMINY INTERPLEX DR
TREVOSE, PA 19053 - BANK OF AMERICA NA CHARLOTTE, FOREST HILLS, NY
10510 QUEENS BLVD STE 2
FOREST HILLS, NY 11375 - CARRINGTON MORTGAGE SERVICES LLC, SANTA ANA, CA
1610 E SAINT ANDREW PL STE B-1
SANTA ANA, CA 92705
