Model Plan 3256
Hendricks County, Indiana New Homes for Sale
Hendricks County, Indiana New Homes for Sale
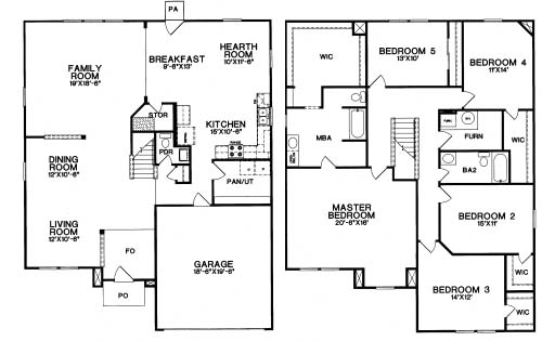
5 Bedroom, 2.5 Bath, 2 Car Garage
3256 - Square Feet
$148,000
Model Plan 3256 - Hendricks County, Indiana New Homes for Sale
5 Bedroom, 2.5 Bath, 2 Car Garage
3256 - Square Feet
$148,000
Area: Hendricks County, Indiana
If you've been searching for a place where new adventures and a sense of discovery happen every day then this is the community for you. It all begins with a 50-acre family forest and trails that take you to an off-road bike course, an open-air chapel, a butterfly meadow, a tree house and more. Have a sleep over with the kids at a campsite along the water, and spend the day at the fishing pond. Or bring a cup of coffee and a book to a quiet park to relax. Then take the long way home beside the water. In this community you'll find something new every day.
The living and dining room area greets you as soon as you enter the home. Next you'll come to the large family room which leads to the kitchen with pantry and breakfast area and hearth room. Upstairs you'll find the 2nd, 3rd, 4th and 5th bedrooms, game room, hall bath and the impressive master bedroom and bath with a walk-in closet.
Please complete the form below to get more information on Model Plan 3256 and other available new home listings from a local Hendricks County, Indiana Real Estate Agent
Contact a local Hendricks County, IN Real Estate Agent
(Please enter all fields.)
Plan 3256 in Hendricks County
Featured New Home
Featured Real Estate Agents
Tim Wright
Wright Realtors

Phone: (317) 961-1346
Danville, IN
Mike Price Team
Mike Price Real Estate Team

Phone: (317) 666-4055
Indianapolis, IN
Tony Janko
Century 21 Sheetz

Phone: (317) 793-2813
Avon, IN
Chris Castetter
F.C. Tucker Company Inc.

Phone: (317) 414-1117
Avon, IN
[email protected]
Randy Hazel (F.C. Tucker)
F.C. Tucker Company, Inc.

Phone: (317) 456-7102
Avon, IN
[email protected]
Featured Mortgage Brokers
- PROFICIO MORTGAGE VENTURES LLC, BRUNSWICK, OH
2950 WESTWAY DR STE 101
BRUNSWICK, OH 44212 - EMBRACE HOME LOANS INC, MIDDLETOWN, RI
25 ENTERPRISE CTR
MIDDLETOWN, RI 2842 - ACADEMY MORTGAGE CORPORATION, CINCINNATI, OH
11590 CENTURY BLVD STE 112
CINCINNATI, OH 45246 - Priority Mortgage Corp., mortgage broker in Worthington, OH
150 E Wilson Bridge Rd Ste 350
Worthington, OH 43085 - M/I Financial, LLC, mortgage broker in Columbus, OH
3 Easton Oval Ste 340
Columbus, OH 43219
