Model Southill
Carmel, Indiana New Homes for Sale
                                                                                        
                                        Carmel, Indiana New Homes for Sale
                                            4 Bedroom, 2.5 Bath, 3 Car Garage
3220 - Square Feet
$286,995
                                            
Model Southill - Carmel, Indiana New Homes for Sale
                                        4 Bedroom, 2.5 Bath, 3 Car Garage
3220 - Square Feet
$286,995
Area: Carmel, Indiana
This gorgeous community features cul-de-sac streets, oversized Lots, a community pool and walking trails. You will also be close to schools, restaurants and shopping for your convenience.
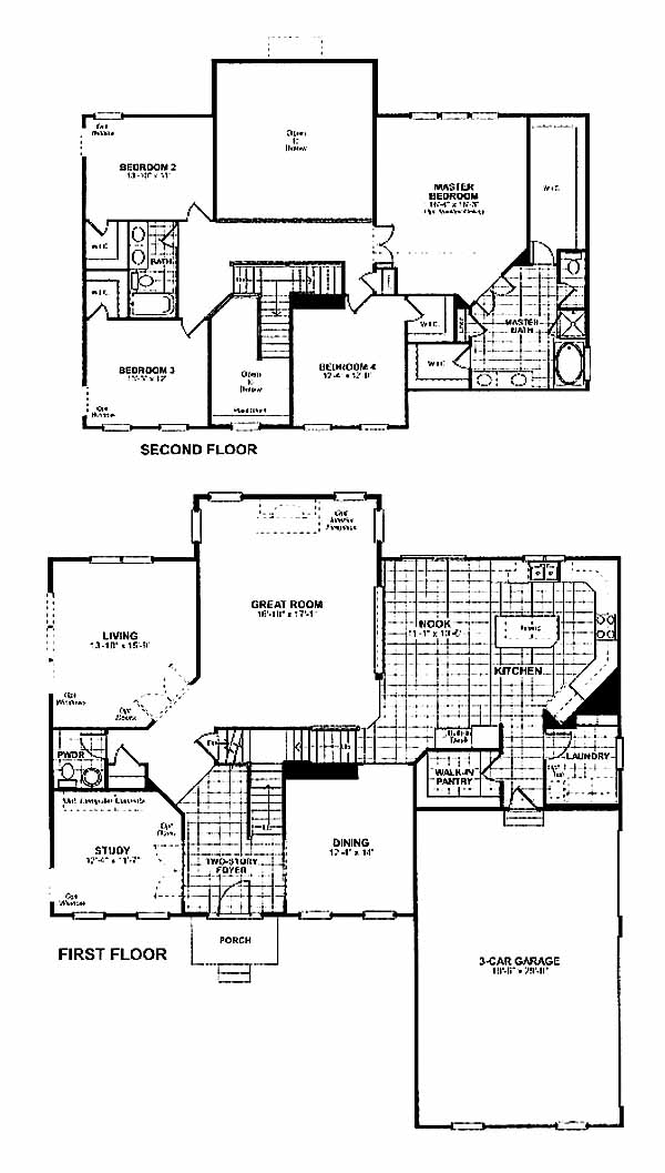
The two-story tiled foyer flanked by the dining room and study takes you past the powder room and living room into the great room with optional interior fireplace. From the great room you can access the tiled kitchen with island, walk-in pantry and breakfast nook. Upstairs you have the 2nd and 3rd bedrooms with walk-in closets, 4th bedroom with walk-in closet and bath, hall bath and the massive master bedroom and bath with walk-in closet and dual vanities.
Please complete the form below to get more information on Model Southill and other available new home listings from a local Carmel, Indiana Real Estate Agent
Contact a local Carmel, IN Real Estate Agent
(Please enter all fields.)
Southill in Carmel
Featured New Home
								Featured Real Estate Agents
Rodney Heard Real Estate Team
Heard Real Estate Team
                                            
                                            Phone: (317) 800-5537
                                            Zionsville,  IN
                                                                                        [email protected]
                                                                                        
Stacy Barry
CENTURY 21 Scheetz
                                            
                                            Phone: (317) 793-2966
                                            Indianapolis,  IN
                                                                                        [email protected]
                                                                                        
Diane Brooks
FC Tucker Company, Inc.
                                            
                                            Phone: (317) 316-8168
                                            Carmel,  IN
                                                                                        [email protected]
                                                                                        
Joseph Kempler
Kempler and Associates, RE/MAX Ability Plus
                                            
                                            Phone: (317) 523-6405
                                            Carmel,  IN
                                                                                        
Derek Gutting
Keller Williams Realty
                                            
                                            Phone: (317) 846-4888
                                            Carmel,  IN
                                                                                        [email protected]
                                                                                        
Featured Mortgage Brokers
- MOVEMENT MORTGAGE LLC, COLUMBIA, SC
1129 SPARKLEBERRY LANE EXT
COLUMBIA, SC 29223 - TOP FLITE FINANCIAL INC, WATERFORD, MI
5663 HIGHLAND RD
WATERFORD, MI 48327 - EMBRACE HOME LOANS INC, MIDDLETOWN, RI
25 ENTERPRISE CTR
MIDDLETOWN, RI 2842 - SUMMIT MORTGAGE INC, FORT WAYNE, IN
8614 SAINT JOE RD
FORT WAYNE, IN 46835 - REVERSE MORTGAGE SOLUTIONS INC, BETHESDA, MD
6701 DEMOCRACY BLVD STE 300
BETHESDA, MD 20817 
