Model LaSalle B
Allen County Southwest, Indiana New Homes for Sale
Allen County Southwest, Indiana New Homes for Sale
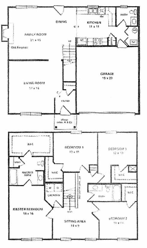
4 Bedroom, 2.5 Bath, 2 Car Garage
2156 - Square Feet
$131,900
Model LaSalle B - Allen County Southwest, Indiana New Homes for Sale
4 Bedroom, 2.5 Bath, 2 Car Garage
2156 - Square Feet
$131,900
Area: Allen County Southwest, Indiana
This quaint community features a very quiet, prestigious southwest Aboite Township location, just outside of the annex boundary lines. Conveniently located five minutes away from the Village of Coventry Shopping Center and restaurants.
This two-story home is made for carefree living and will provide plenty of room for a growing family. Home features a formal living room, a huge family room with adjoining dining area and an impressive kitchen. Kitchen also features ample cabinet & storage space, half bath and access to the 2-car garage. The second floor boasts a pleasant sitting area at the top of the stairs and a handy upstairs laundry room. The master suite is truly grand with a walk-thru master bath that leads to the super-sized walk-in closet. The other bedrooms have walk-in closets as well.
Please complete the form below to get more information on Model LaSalle B and other available new home listings from a local Allen County Southwest, Indiana Real Estate Agent
Contact a local Allen County Southwest, IN Real Estate Agent
(Please enter all fields.)
LaSalle B in Allen County Southwest
Featured New Home
Featured Mortgage Brokers
- TOP FLITE FINANCIAL INC, FORT LAUDERDALE, FL
33 NE 2ND ST STE 100
FORT LAUDERDALE, FL 33301 - Mainstream Funding Network, Inc., mortgage broker in Williamsville, NY
5586 Main St.
Williamsville, NY 14221 - PROFICIO MORTGAGE VENTURES LLC, BRUNSWICK, OH
2950 WESTWAY DR STE 101
BRUNSWICK, OH 44212 - Altamont Mortgage Funding Inc, mortgage broker in Portland, OR
4380 SW Macadam Ave Ste 125
Portland, OR 97239 - Ross Mortgage Corporation, mortgage broker in Royal Oak, MI
27862 Woodward Avenue
Royal Oak, MI 48067
