Model Coventry
Round Lake Heights, Illinois New Homes for Sale
Round Lake Heights, Illinois New Homes for Sale
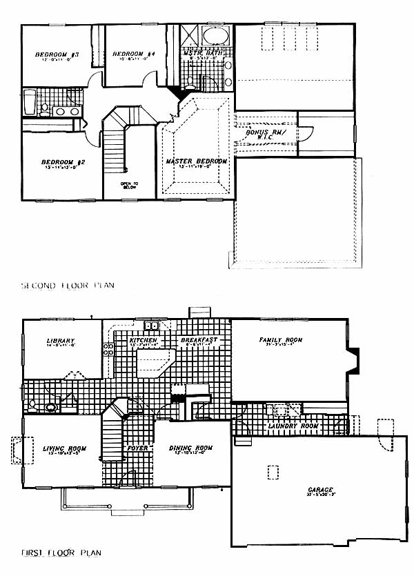
4 Bedroom, 2.5 Bath, 3 Car Garage
2999 - Square Feet
$499,900
Model Coventry - Round Lake Heights, Illinois New Homes for Sale
4 Bedroom, 2.5 Bath, 3 Car Garage
2999 - Square Feet
$499,900
Area: Round Lake Heights, Illinois
A wonderful plan that provides all the space one could need. The island kitchen is planned for quick meals eaten on stools or in the breakfast area where the family can take their time and go over the days events. Both a library and a large family room make up the rest of the informal areas of the main level.
Please complete the form below to get more information on Model Coventry and other available new home listings from a local Round Lake Heights, Illinois Real Estate Agent
Contact a local Round Lake Heights, IL Real Estate Agent
(Please enter all fields.)
Coventry in Round Lake Heights
Featured New Home
Featured Real Estate Agents
Felicia Jordan
Coldwell Banker Residential

Phone: (847) 530-1271
Libertyville, IL
[email protected]
Lisa Connolly
Baird and Warner, Barrington

Phone: (847) 512-8657
Barrington, IL
Donna Sattler
RE/MAX At Home

Phone: (847) 651-3300
Rolling Meadows, IL
[email protected]
Randall Nosalik
GNR Realty Inc.

Phone: (847) 812-2681
Ingleside, IL
Andrew L. Carlin
Featured Mortgage Brokers
- LEGACYTEXAS BANK, PLANO, TX
5000 LEGACY DR FL 1
PLANO, TX 75024 - FLAGSTAR BANK FSB, VIENNA, WV
510 GRAND CENTRAL AVE
VIENNA, WV 26105 - AMERICAN NATIONWIDE MORTGAGE COMPANY INC, LITTLE RIVER, SC
2220 HIGHWAY 17
LITTLE RIVER, SC 29566 - PRIMELENDING A PLAINSCAPITAL COMPANY, GLEN ALLEN, VA
4198 COX RD STE 113
GLEN ALLEN, VA 23060 - PRIMELENDING A PLAINSCAPITAL COMPANY, HIBBING, MN
2900 E BELTLINE STE 5
HIBBING, MN 55746

