Model Brighton
Lindenhurst, Illinois New Homes for Sale
Lindenhurst, Illinois New Homes for Sale
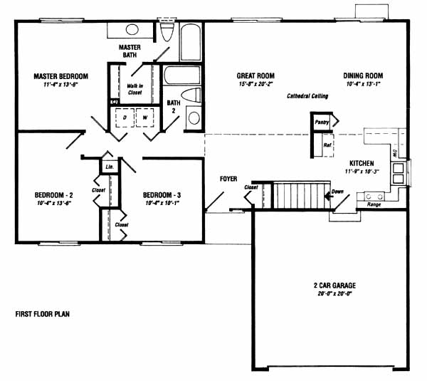
3 Bedroom, 2 Bath, 2 Car Garage
$186,900
Model Brighton - Lindenhurst, Illinois New Homes for Sale
3 Bedroom, 2 Bath, 2 Car Garage
$186,900
Area: Lindenhurst, Illinois
A development that offers the advantages of convenience, great values, beauty, location, community and accommodation. Located in a historic area between the metropolis of Chicago and the city of Milwaukee, it provides the best of both worlds. Access to various rivers, Lake Michigan, forest preserves, Illinois State Beach Park, municipal and private golf course, country clubs, Six Flags Great America, Great Lakes military Base and world class shopping Gurnee Mills, Lake Hurst and other outstanding centers nearby.
This ranch style home boasts three bedrooms and two full baths. It also features a kitchen, great room, dining room, half bath, laundry room and an attached two-car garage. Optional three-car garage available.
Please complete the form below to get more information on Model Brighton and other available new home listings from a local Lindenhurst, Illinois Real Estate Agent
Contact a local Lindenhurst, IL Real Estate Agent
(Please enter all fields.)
Brighton in Lindenhurst
Featured New Home
Featured Real Estate Agents
Michelle and Frankie Nunez
Re/Max Suburban

Phone: (847) 400-6718
Libertyville, IL
[email protected]
Ron and Kat Becker
Re/Max Advantage Realty

Phone: (847) 457-0204
Antioch, IL
[email protected]
Jena Krajca
Coldwell Banker Residential Brokera

Phone: (847) 651-3675
Libertyville, IL
[email protected]
Dawn Froberg
Century 21 Roberts and Andrews

Phone: (847) 542-3091
Lindenhurst, IL
Amy Kite
Keller Williams Realty Infinity

Phone: (847) 232-4139
Naperville, IL
[email protected]
Featured Mortgage Brokers
- M/I Financial, LLC, mortgage broker in Columbus, OH
3 Easton Oval Ste 340
Columbus, OH 43219 - SYNOVUS MORTGAGE CORP, ROSWELL, GA
10446 ALPHARETTA ST
ROSWELL, GA 30075 - WELLS FARGO BANK NA, DES MOINES, IA
1 HOME CAMPUS # 4801-196
DES MOINES, IA 50328 - PRIMELENDING A PLAINSCAPITAL COMPANY, NORTH SYRACUSE, NY
6702 BUCKLEY RD STE 140
NORTH SYRACUSE, NY 13212 - ALCOVA MORTGAGE LLC, ROANOKE, VA
305 MARKET ST SE STE 204
ROANOKE, VA 24011
