Model Hawthorne
Joliet, Illinois New Homes for Sale
Joliet, Illinois New Homes for Sale
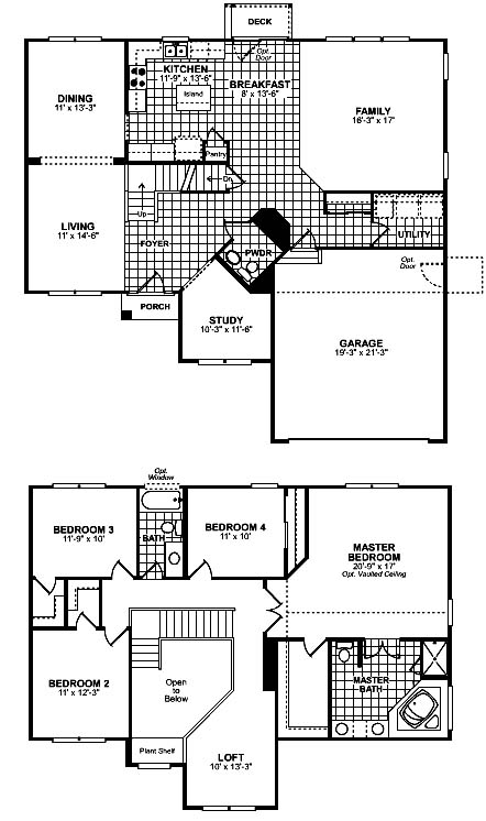
4 Bedroom, 2.5 Bath, 2 Car Garage
2809 Square Feet
$376,990
Model Hawthorne - Joliet, Illinois New Homes for Sale
4 Bedroom, 2.5 Bath, 2 Car Garage
2809 Square Feet
$376,990
Area: Joliet, Illinois
These exceptional homes are located in Bolingbrook, Illinois, one of the fastest growing suburbs in Chicago. Set amid a country atmosphere, Bolingbrook boasts a wild life sanctuary, hidden lakes, and several golf courses. Newly constructed 68,000 square foot Recreation and Aquatic Center offers resident's state of the art facilities including a racquet club and water park complete with giant slide, sand volleyball courts and two indoor swimming pools. For the city-minded, downtown Chicago is only 25 miles away and easy access to I-55 expressway and I-355 tollway.
2,809 Square feet; 4 Bedrooms plus Loft; 2 1/2 Baths; 9' First floor ceilings; 1st Floor Study; 2 Story foyer, Family room; Living and Dining Room; Island kitchen with Breakfast area; 2-car garage; 9' Partial Basement w/crawl.
Please complete the form below to get more information on Model Hawthorne and other available new home listings from a local Joliet, Illinois Real Estate Agent
Contact a local Joliet, IL Real Estate Agent
(Please enter all fields.)
Hawthorne in Joliet
Featured New Home
Featured Real Estate Agents
Maria Cedano
RE/MAX Ultimate Professionals

Phone: (815) 513-0192
Shorewood, IL
Sherry Lewandowski
RE/MAX Ultimate Professionals

Phone: (815) 690-5873
Shorewood, IL
[email protected]
Dawn Dause
Re/Max Ultimate Professionals

Phone: (815) 515-1454
Shorewood, IL
[email protected]
Ellen Williams
Coldwell Banker Honig Bell

Phone: (815) 600-8144
Plainfield, IL
LaNita Cates
REMAX of Joliet

Phone: (630) 445-0328
Joliet, IL
[email protected]
Featured Mortgage Brokers
- ACADEMY MORTGAGE CORPORATION, CHICO, CA
1600 MANGROVE AVE STE 100
CHICO, CA 95926 - Blue Square Mortgage LLC, mortgage broker in Seattle, WA
4212 33rd Ave W
Seattle, WA 98199 - FIRST HERITAGE FINANCIAL, LLC, TREVOSE, PA
2655 NESHAMINY INTERPLEX DR
TREVOSE, PA 19053 - FIRST PRIORITY FINANCIAL INC, ROSEVILLE, CA
1050 OPPORTUNITY DR STE 145
ROSEVILLE, CA 95678 - CHARTER WEST NATIONAL BANK, GRAND ISLAND, NE
714 N DIERS AVE
GRAND ISLAND, NE 68803
