Model Hickory
Homewood, Illinois New Homes for Sale
Homewood, Illinois New Homes for Sale
4 Bedroom, 2.5 Bath, 2 Car Garage
2296 - Square Feet
$274,490
Model Hickory - Homewood, Illinois New Homes for Sale
4 Bedroom, 2.5 Bath, 2 Car Garage
2296 - Square Feet
$274,490
Area: Homewood, Illinois
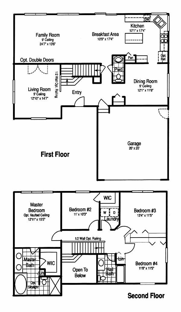
This two story home has plenty of room for the growing family. Starting with 9' ceilings in the living room, dining room, and family room. Optional double doors in living room leading to family room, optional fireplace in the family room. Huge kitchen with breakfast area, optional bay windows and powder room. On the 2nd floor you have three additional bedrooms with the laundry off the top of the steps, full bath in hall, lots of closet space and railing overlooking foyer. This model comes with a 2 car garage and a partial basement.
Please complete the form below to get more information on Model Hickory and other available new home listings from a local Homewood, Illinois Real Estate Agent
Contact a local Homewood, IL Real Estate Agent
(Please enter all fields.)
Hickory in Homewood
Featured New Home
Featured Real Estate Agents
Laura Walter
Walter Raines Realty

Phone: (708) 218-4645
Homewood, IL
Kandice Robins
Robins Realty, LLC

Phone: (708) 527-1765
Chicago, IL
[email protected]
Michael McClinton
McClinton Realty Group

Phone: (312) 375-4525
Frankfort, IL
Susan Adduci
Coldwell Banker

Phone: (708) 435-2267
Flossmoor, IL
[email protected]
Maryanne Schultz
Baird and Warner - Orland Park

Phone: (708) 695-6187
Orland Park, IL
[email protected]
Featured Mortgage Brokers
- LEADER ONE FINANCIAL CORPORATION, OVERLAND PARK, KS
11020 KING ST STE 390
OVERLAND PARK, KS 66210 - FINANCIAL FREEDOM ACQUISITION LLC, IRVINE, CA
1 BANTING
IRVINE, CA 92618 - REVERSE MORTGAGE SOLUTIONS INC, BETHESDA, MD
6701 DEMOCRACY BLVD STE 300
BETHESDA, MD 20817 - HOMESTAR FINANCIAL CORPORATION, WINDER, GA
133 W ATHENS ST STE I
WINDER, GA 30680 - FIRST PREFERENCE MTG CORP, BOWIE, MD
1525 POINTER RIDGE PL
BOWIE, MD 20716
