Model Ashwood
Homewood, Illinois New Homes for Sale
Homewood, Illinois New Homes for Sale
3 Bedroom, 2.5 Bath, 2 Car Garage
1753 - Square Feet
$239,490
Model Ashwood - Homewood, Illinois New Homes for Sale
3 Bedroom, 2.5 Bath, 2 Car Garage
1753 - Square Feet
$239,490
Area: Homewood, Illinois
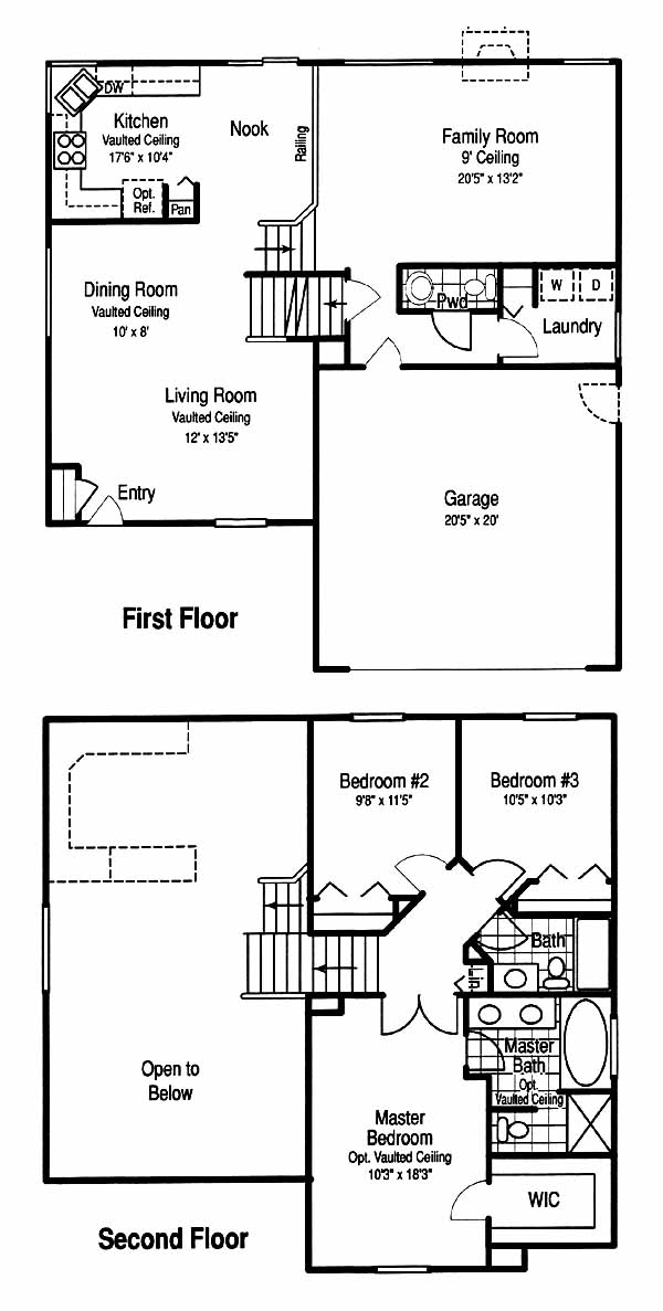
This is a beautiful tri-level home that is great for the small family. Vaulted ceilings in the living, dining and kitchen. That's right, kitchen! The family room has a 9' ceiling and an optional fireplace. Laundry facility is on the 1st floor and you get a full basement. 2nd floor offers a master bedroom with optional vaulted ceiling, master bath with optional vaulted ceiling, huge walk-in closet, two more bedrooms, full bath and railing overlooking the living, dining room, and kitchen. Top it off with a 2 car garage with entrance through the laundry area and this is a great buy!
Please complete the form below to get more information on Model Ashwood and other available new home listings from a local Homewood, Illinois Real Estate Agent
Contact a local Homewood, IL Real Estate Agent
(Please enter all fields.)
Ashwood in Homewood
Featured New Home
Featured Real Estate Agents
Gay Weaver
Remax Synergy

Phone: (708) 572-7907
Flossmoor, IL
Laura Walter
Walter Raines Realty

Phone: (708) 218-4645
Homewood, IL
Susan Adduci
Coldwell Banker

Phone: (708) 435-2267
Flossmoor, IL
[email protected]
Aaron McDonald
Metropro Realty

Phone: (773) 985-7323
Chicago, IL
Cindy Greenman
REMAX Synergy

Phone: (708) 752-5574
Flossmoor, IL
[email protected]
Featured Mortgage Brokers
- AMERICAN PACIFIC MORTGAGE, VISTA, CA
380 S MELROSE DR STE 203
VISTA, CA 92081 - TOP FLITE FINANCIAL INC, WEST LINN, OR
1800 BLANKENSHIP RD STE 200
WEST LINN, OR 97068 - PRIMELENDING A PLAINSCAPITAL COMPANY, GLEN ALLEN, VA
4198 COX RD STE 113
GLEN ALLEN, VA 23060 - Ross Mortgage Corporation, mortgage broker in Royal Oak, MI
27862 Woodward Avenue
Royal Oak, MI 48067 - CHARTER WEST NATIONAL BANK, GRAND ISLAND, NE
714 N DIERS AVE
GRAND ISLAND, NE 68803
