Model Lakemoor I
Crystal Lake, Illinois New Homes for Sale
Crystal Lake, Illinois New Homes for Sale
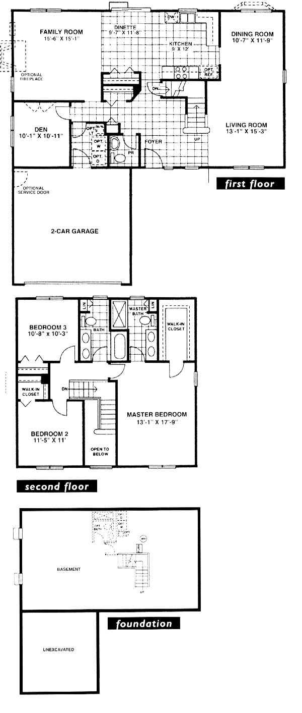
3 Bedroom, 2.5 Bath, 2 Car Garage
2137 - Square Feet
$239,900
Model Lakemoor I - Crystal Lake, Illinois New Homes for Sale
3 Bedroom, 2.5 Bath, 2 Car Garage
2137 - Square Feet
$239,900
Area: Crystal Lake, Illinois
This community features 92 acres of planned recreation space that includes a soccer field, baseball diamond, walking and jogging paths and a play park. Outdoor recreation featuring water activities, hiking and cross-country skiing are also nearby. The area is served by the McHenry Country and Lake County school districts.
Enjoy two-story living in this exciting 3 bedroom, 2-1/2 bath home with new floor plan design. The first floor offers an oversized kitchen and dinette area that opens up to a spacious family room. The living room and formal dining room are adjacent to the volume foyer entry. The first floor den is a relaxing retreat. Upstairs, you will find three large bedrooms with abundant closet space. Two-car garage.
Please complete the form below to get more information on Model Lakemoor I and other available new home listings from a local Crystal Lake, Illinois Real Estate Agent
Contact a local Crystal Lake, IL Real Estate Agent
(Please enter all fields.)
Lakemoor I in Crystal Lake
Featured New Home
Featured Real Estate Agents
Jackie Reed
Re/Max Unlimited Northwest

Phone: (847) 268-4715
Palatine, IL
[email protected]
Kay Wirth
Re/Max Unlimited Northwest

Phone: (815) 940-7472
Crystal Lake, IL
[email protected]
Mandy Montford
Baird and Warner

Phone: (815) 245-8195
Crystal Lake, IL
Tyler Lewke
Lewke Partners / Keller Williams

Phone: (815) 981-9662
Crystal Lake, IL
[email protected]
Marj Carpenter
RE/MAX Unlimited Northwest

Phone: (815) 656-4565
Crystal Lake, IL
[email protected]
Featured Mortgage Brokers
- WELLS FARGO BANK NA, DES MOINES, IA
1 HOME CAMPUS # 4801-196
DES MOINES, IA 50328 - PINNACLE CAPITAL MORTGAGE CORPORATION, BELLEVUE, WA
2800 NORTHUP WAY STE 220
BELLEVUE, WA 98004 - PRIMARY RESIDENTIAL MORTGAGE INC, SAN FRANCISCO, CA
1746 18TH ST
SAN FRANCISCO, CA 94107 - REVERSE MORTGAGE SOLUTIONS INC, NEWBURGH, NY
700 CORPORATE BLVD
NEWBURGH, NY 12550 - ALCOVA MORTGAGE LLC, ROANOKE, VA
305 MARKET ST SE STE 204
ROANOKE, VA 24011
