Model Sierra
Walton County, Georgia New Homes for Sale
Walton County, Georgia New Homes for Sale
3 Bedroom, 2.5 Bath, 2 Car Garage
$135,900
Model Sierra - Walton County, Georgia New Homes for Sale
3 Bedroom, 2.5 Bath, 2 Car Garage
$135,900
Area: Walton County, Georgia
This community offers large homesites with sidewalks and professional landscaping throughout. Amenities includes a Jr. Olympic swimming pool, clubhouse, tennis and basketball courts and a playground.
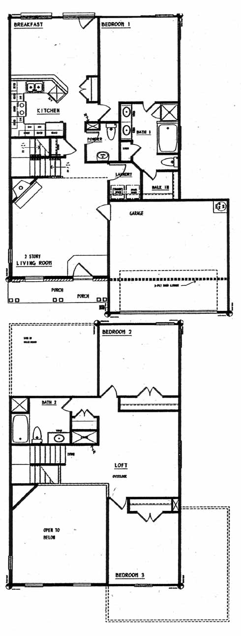
This home includes a two-story living room with fireplace at the foyer entrance. The kitchen nearby has a pantry and ample counterspace for preparing meals while overlooking the breakfast room with patio access. The first-floor master bedroom has a walk-in closet and master bath with double vanity, tub and separate shower. The second floor has two more bedrooms, a bath and a loft area. Views of the living room can be seen below.
Please complete the form below to get more information on Model Sierra and other available new home listings from a local Walton County, Georgia Real Estate Agent
Contact a local Walton County, GA Real Estate Agent
(Please enter all fields.)
Sierra in Walton County
Featured New Home
Featured Mortgage Brokers
- NEIGHBORS FINANCIAL CORP, SACRAMENTO, CA
2831 G ST STE 200
SACRAMENTO, CA 95816 - EQUITY LOANS LLC, NEW CITY, NY
216 CONGERS RD STE 3A
NEW CITY, NY 10956 - AMERICAN FINANCIAL NETWORK INC, MURRIETA, CA
24910 WASHINGTON AVE
MURRIETA, CA 92562 - NORTHWEST MORTGAGE GROUP INC, PORTLAND, OR
10260 SW GREENBURG RD STE 900
PORTLAND, OR 97223 - PRIMELENDING A PLAINSCAPITAL COMPANY, NORTH SYRACUSE, NY
6702 BUCKLEY RD STE 140
NORTH SYRACUSE, NY 13212
