Model Sheridan
Walton County, Georgia New Homes for Sale
Walton County, Georgia New Homes for Sale
3 Bedroom, 2.5 Bath, 2 Car Garage
$141,300
Model Sheridan - Walton County, Georgia New Homes for Sale
3 Bedroom, 2.5 Bath, 2 Car Garage
$141,300
Area: Walton County, Georgia
This community offers large homesites with sidewalks and professional landscaping throughout. Amenities includes a Jr. Olympic swimming pool, clubhouse, tennis and basketball courts and a playground.
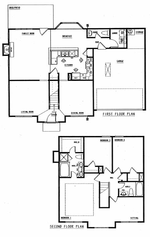
This two-story home has formal living and dining rooms on either side of the foyer entrance. The kitchen includes a pantry and ample counterspace for preparing meals while overlooking the breakfast room with bay window. The family room nearby is a nice spot to entertain guests and includes a fireplace and access to the deck. The second-floor master bedroom includes a sitting room, walk-in closet and private bath with double vanity, tub and separate shower. Two more bedrooms share a bath.
Please complete the form below to get more information on Model Sheridan and other available new home listings from a local Walton County, Georgia Real Estate Agent
Contact a local Walton County, GA Real Estate Agent
(Please enter all fields.)
Sheridan in Walton County
Featured New Home
Featured Mortgage Brokers
- EVERETT FINANCIAL INC, ORANGE BEACH, AL
25910 CANAL RD STE N
ORANGE BEACH, AL 36561 - MOVEMENT MORTGAGE LLC, RICHMOND, VA
5014 MONUMENT AVE
RICHMOND, VA 23230 - RESIDENTIAL HOME FUNDING CORPORATION, BLUE BELL, PA
1787 SENTRY PKWY W BLDG 18-130
BLUE BELL, PA 19422 - BancOhio Financial, mortgage broker in Powell, OH
285 S Liberty St
Powell, OH 43065 - Harvard Mortgage, mortgage broker in Albuquerque, NM
9551 Paseo del Norte NE
Albuquerque, NM 87122
