Model Churchill
Walton County, Georgia New Homes for Sale
Walton County, Georgia New Homes for Sale
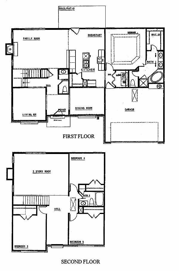
4 Bedroom, 2.5 Bath, 2 Car Garage
$159,000
Model Churchill - Walton County, Georgia New Homes for Sale
4 Bedroom, 2.5 Bath, 2 Car Garage
$159,000
Area: Walton County, Georgia
Two story family room. Master on the main floor. Hardwood flooring in the kitchen, hall and powder room. Nine foot ceilings.
Please complete the form below to get more information on Model Churchill and other available new home listings from a local Walton County, Georgia Real Estate Agent
Contact a local Walton County, GA Real Estate Agent
(Please enter all fields.)
Churchill in Walton County
Featured New Home
Featured Mortgage Brokers
- CARLILE PROPERTIES, SACRAMENTO, CA
1009 22ND STREET, 3A
SACRAMENTO, CA 95816 - FIRST PRIORITY FINANCIAL INC, ROSEVILLE, CA
1050 OPPORTUNITY DR STE 145
ROSEVILLE, CA 95678 - OPEN MORTGAGE LLC, CORONA, CA
1840 ROCKCREST DR
CORONA, CA 92880 - Ross Mortgage Corporation, mortgage broker in Royal Oak, MI
27862 Woodward Avenue
Royal Oak, MI 48067 - PRIMELENDING A PLAINSCAPITAL COMPANY, NORTH SYRACUSE, NY
6702 BUCKLEY RD STE 140
NORTH SYRACUSE, NY 13212
Copyright © 2026 NewHomesAgents.com
