Model Jessamine Park
Smyrna, Georgia New Homes for Sale
Model Jessamine Park - Smyrna, Georgia New Homes for Sale
3 Bedroom, 2.5 Bath, 2 Car Garage
$222,900
Area: Smyrna, Georgia
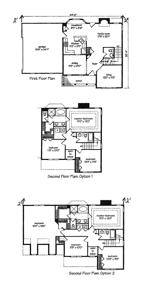
Small quaint community that offers spacious homesites. Close to shopping, schools, and parks. Minutes from Atlanta. This is a charming brick home with front covered porch and a two story foyer with a decorative art niche that makes for an expressive entry. A large family room features a cozy fireplace and is open to the kitchen and breakfast area. A bay window in the breakfast room letting in natural light creates the perfect spot for morning coffee. Upstairs the master suite offers a decorative ceiling treatment and a vaulted master bath with his n hers vanities, a separate shower and tub. Large walk-in closet.
Please complete the form below to get more information on Model Jessamine Park and other available new home listings from a local Smyrna, Georgia Real Estate Agent
Contact a local Smyrna, GA Real Estate Agent
(Please enter all fields.)
Jessamine Park in Smyrna
Featured New Home
Featured Real Estate Agents
Mike Price
Keller Williams First Atlanta

Phone: (678) 392-1549
Atlanta, GA
Rhonda Duffy
Duffy Realty of Atlanta

Phone: (678) 389-4952
Alpharetta, GA
[email protected]
John Zercher
Zercher Realty Partners

Phone: (404) 800-1921
Smyrna, GA
Glennda Baker
Glennda Baker & Associates

Phone: (678) 952-2251
Marietta, GA
[email protected]
Patty Lawson
Atlanta Communities

Phone: (770) 355-1920
Marietta, GA
[email protected]
Featured Mortgage Brokers
- ACADEMY MORTGAGE CORPORATION, CINCINNATI, OH
11590 CENTURY BLVD STE 112
CINCINNATI, OH 45246 - GENERATION MORTGAGE COMPANY, HILO, HI
1257 KILAUEA AVE STE 30
HILO, HI 96720 - CASTLE & COOKE MORTGAGE LLC, GREENWOOD VILLAGE, CO
7400 E ORCHARD RD # 2900N
GREENWOOD VILLAGE, CO 80111 - REVERSE MORTGAGE SOLUTIONS INC, BETHESDA, MD
6701 DEMOCRACY BLVD STE 300
BETHESDA, MD 20817 - INDEPENDENT BANK, MT PLEASANT, MI
319 E BROADWAY ST
MT PLEASANT, MI 48858
