Model Georgetown
Paulding County, Georgia New Homes for Sale
Paulding County, Georgia New Homes for Sale
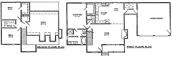
3 Bedroom, 2.5 Bath, 2 Car Garage
$169,900
Model Georgetown - Paulding County, Georgia New Homes for Sale
3 Bedroom, 2.5 Bath, 2 Car Garage
$169,900
Area: Paulding County, Georgia
Large family room with marble fireplace and the master on the main. New community in a country setting yet close to shopping, schools and interstate.
Please complete the form below to get more information on Model Georgetown and other available new home listings from a local Paulding County, Georgia Real Estate Agent
Contact a local Paulding County, GA Real Estate Agent
(Please enter all fields.)
Georgetown in Paulding County
Featured New Home
Featured Mortgage Brokers
- PRIMELENDING A PLAINSCAPITAL COMPANY, MELVILLE, NY
200 BROADHOLLOW RD STE 207
MELVILLE, NY 11747 - American Finance-Thomasville, mortgage broker in Thomasville, GA
15179 US Hwy 19 South
Thomasville, GA 31792 - INDEPENDENT BANK, MT PLEASANT, MI
319 E BROADWAY ST
MT PLEASANT, MI 48858 - ENVOY MORTGAGE LTD, COLORADO SPRINGS, CO
6760 CORPORATE DR STE 130
COLORADO SPRINGS, CO 80919 - Blue Square Mortgage LLC, mortgage broker in Seattle, WA
4212 33rd Ave W
Seattle, WA 98199
Copyright © 2026 NewHomesAgents.com
