Model Cleburne
Henry County, Georgia New Homes for Sale
Henry County, Georgia New Homes for Sale
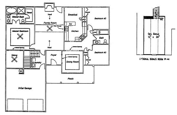
3 Bedroom, 2 Bath, 2 Car Garage
1745 Sq. Ft. heated; bonus room 240 Sq. Ft.
$141,250
Model Cleburne - Henry County, Georgia New Homes for Sale
3 Bedroom, 2 Bath, 2 Car Garage
1745 Sq. Ft. heated; bonus room 240 Sq. Ft.
$141,250
Area: Henry County, Georgia
Spacious family home with split bedroom floor plan. Vaulted family room with fireplace, large master suite, optional bonus room.
Please complete the form below to get more information on Model Cleburne and other available new home listings from a local Henry County, Georgia Real Estate Agent
Contact a local Henry County, GA Real Estate Agent
(Please enter all fields.)
Cleburne in Henry County
Featured New Home
Featured Mortgage Brokers
- ADVISORS MORTGAGE GROUP LLC, TURNERSVILLE, NJ
4991 BLACK HORSE PIKE
TURNERSVILLE, NJ 8012 - MOVEMENT MORTGAGE LLC, RICHMOND, VA
5014 MONUMENT AVE
RICHMOND, VA 23230 - KENTUCKY HOUSING CORPORATION, FRANKFORT, KY
1231 LOUISVILLE RD
FRANKFORT, KY 40601 - Intercap Lending, mortgage broker in Albuquerque, NM
5600 Wyoming Blvd NE Ste 20
Albuquerque, NM 87109 - GENERATION MORTGAGE COMPANY, ATLANTA, GA
3 PIEDMONT CTR NE STE 300
ATLANTA, GA 30305
Copyright © 2026 NewHomesAgents.com
