Model Burlington
Hall County, Georgia New Homes for Sale
Hall County, Georgia New Homes for Sale
3 Bedroom, 3 Bath, 2 Car Garage
Square Feet
$181,300
Model Burlington - Hall County, Georgia New Homes for Sale
3 Bedroom, 3 Bath, 2 Car Garage
Square Feet
$181,300
Area: Hall County, Georgia
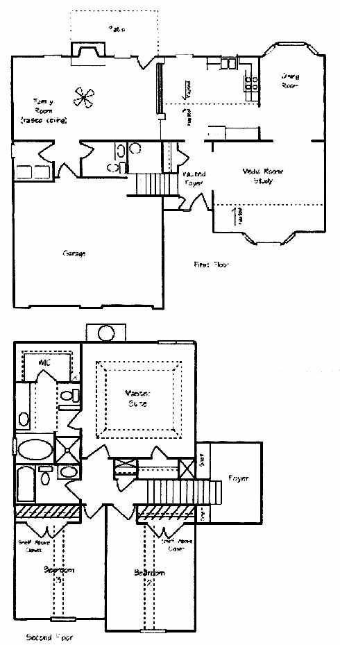
3br/3ba Two Story Model Home Hardwood entry foyer leads to the formal dining room with a trey ceiling. An open island kitchen with maple cabinets adjoins the breakfast area. The 2 story great room with a brick corner fireplace overlooks a covered patio. Master suite on the main has a large bath and walk in closet. A 2nd br also on the main level with it's own full bath. The 3rd br & full bath & loft are upstairs. A covered porch and 2 car garage complete this popular plan.
Please complete the form below to get more information on Model Burlington and other available new home listings from a local Hall County, Georgia Real Estate Agent
Contact a local Hall County, GA Real Estate Agent
(Please enter all fields.)
Burlington in Hall County
Featured New Home
Featured Real Estate Agents
The Smith Team
Keller Williams Realty

Phone: (678) 316-5049
Buford, GA
Lauren McGuire
Lauren McGuire with Virtual Properties Realty

Phone: (770) 809-6774
Buford, GA
The Welch Team
Keller Williams Community Partners

Phone: (706) 344-6909
Dawsonville, GA
Shannon Stephens
Virtual Properties Realty

Phone: (678) 316-5796
Gainesville, GA
[email protected]
Mark Spain
Mark Spain Real Estate

Phone: (770) 886-9000
Alpharetta, GA
[email protected]
Featured Mortgage Brokers
- PRIMARY RESIDENTIAL MORTGAGE INC, BALTIMORE, MD
1816 ALICEANNA ST # B
BALTIMORE, MD 21231 - PROFICIO MORTGAGE VENTURES LLC, BRUNSWICK, OH
2950 WESTWAY DR STE 101
BRUNSWICK, OH 44212 - M/I Financial, LLC, mortgage broker in Columbus, OH
3 Easton Oval Ste 340
Columbus, OH 43219 - RESIDENTIAL HOME FUNDING CORPORATION, BLUE BELL, PA
1787 SENTRY PKWY W BLDG 18-130
BLUE BELL, PA 19422 - OPEN MORTGAGE LLC, CORONA, CA
1840 ROCKCREST DR
CORONA, CA 92880
