Model Sabrina
Hall County, Georgia New Homes for Sale
Hall County, Georgia New Homes for Sale
3 Bedroom, 2.5 Bath, 2 Car Garage
$284,900
Model Sabrina - Hall County, Georgia New Homes for Sale
3 Bedroom, 2.5 Bath, 2 Car Garage
$284,900
Area: Hall County, Georgia
This community of single-family homes features large wooded homesites. Nice landscaping throughout the neighborhood add to the pristine look of the elegant country living you will experience here. Close to area shopping.
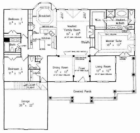
This home has formal living and dining rooms on either side of the foyer entrance. Pass by decorative columns into the vaulted family room with fireplace. The kitchen has an island workspace and serving bar before opening into the breakfast room with tray ceiling and desk area. Two bedrooms nearby share a bath between them. The master suite includes a walk-in closet, a tray ceiling and a master bath with double vanity. An attractive wrap-around porch invites guests to the front door.
Please complete the form below to get more information on Model Sabrina and other available new home listings from a local Hall County, Georgia Real Estate Agent
Contact a local Hall County, GA Real Estate Agent
(Please enter all fields.)
Sabrina in Hall County
Featured New Home
Featured Real Estate Agents
Rhonda Duffy
Duffy Realty of Atlanta

Phone: (678) 389-4952
Alpharetta, GA
[email protected]
Shannon Stephens
Virtual Properties Realty

Phone: (678) 316-5796
Gainesville, GA
[email protected]
Chad Buffington
Keller Williams Realty

Phone: (770) 540-6852
Atlanta, GA
Lauren McGuire
Lauren McGuire with Virtual Properties Realty

Phone: (770) 809-6774
Buford, GA
Jason and Nikki Bonds
Featured Mortgage Brokers
- Consolidated Loan Company of Albany- Home Office, mortgage broker in Albany, GA
430 W Tift Ave
Albany, GA 31701 - PRIMELENDING A PLAINSCAPITAL COMPANY, GLEN ALLEN, VA
4198 COX RD STE 113
GLEN ALLEN, VA 23060 - TOP FLITE FINANCIAL INC, FORT LAUDERDALE, FL
33 NE 2ND ST STE 100
FORT LAUDERDALE, FL 33301 - PRIMELENDING A PLAINSCAPITAL COMPANY, NORTH SYRACUSE, NY
6702 BUCKLEY RD STE 140
NORTH SYRACUSE, NY 13212 - AMERICAN FINANCIAL NETWORK INC, MURRIETA, CA
24910 WASHINGTON AVE
MURRIETA, CA 92562

