Model Westfield
Hall County, Georgia New Homes for Sale
Hall County, Georgia New Homes for Sale
4 Bedroom, 3 Bath, 2 Car Garage
$197,900
Model Westfield - Hall County, Georgia New Homes for Sale
4 Bedroom, 3 Bath, 2 Car Garage
$197,900
Area: Hall County, Georgia
This community of single-family homes is set among rolling hills in a quiet country setting. Nicely landscaped homes and smiling faces await you in this spectacular neighborhood. Close to area schools, shopping and hospitals.
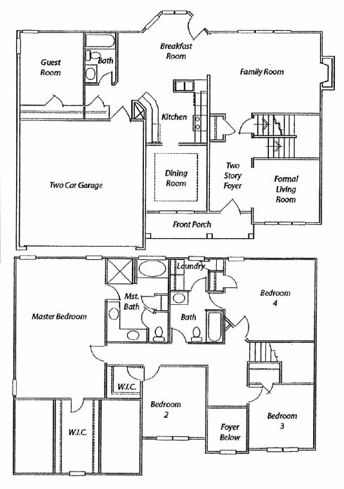
This two-story home has a formal living room to one side of the two-story foyer entrance. The family room in the back includes a fireplace, making it a nice area for entertaining guests. The breakfast room leads to the kitchen with ample counterspace for preparing food. The formal dining room is a nice option when serving meals. The first-floor bedroom offers plenty of privacy for guests. The second-floor master bedroom includes a walk-in closet and master bath with tub and separate shower. Three more bedrooms share a bath that has access to the laundry room.
Please complete the form below to get more information on Model Westfield and other available new home listings from a local Hall County, Georgia Real Estate Agent
Contact a local Hall County, GA Real Estate Agent
(Please enter all fields.)
Westfield in Hall County
Featured New Home
Featured Real Estate Agents
The Smith Team
Keller Williams Realty

Phone: (678) 316-5049
Buford, GA
Lauren McGuire
Lauren McGuire with Virtual Properties Realty

Phone: (770) 809-6774
Buford, GA
Chad Buffington
Keller Williams Realty

Phone: (770) 540-6852
Atlanta, GA
Shannon Stephens
Virtual Properties Realty

Phone: (678) 316-5796
Gainesville, GA
[email protected]
Rhonda Duffy
Duffy Realty of Atlanta

Phone: (678) 389-4952
Alpharetta, GA
[email protected]
Featured Mortgage Brokers
- FIRST PRIORITY FINANCIAL INC, ROSEVILLE, CA
1050 OPPORTUNITY DR STE 145
ROSEVILLE, CA 95678 - CARLILE PROPERTIES, SACRAMENTO, CA
1009 22ND STREET, 3A
SACRAMENTO, CA 95816 - CASTLE & COOKE MORTGAGE LLC, GREENWOOD VILLAGE, CO
7400 E ORCHARD RD # 2900N
GREENWOOD VILLAGE, CO 80111 - NEIGHBORS FINANCIAL CORP, SACRAMENTO, CA
2831 G ST STE 200
SACRAMENTO, CA 95816 - W J BRADLEY MORTGAGE CAPITAL, LLC, PLAINFIELD, IL
2011 S ROUTE 59
PLAINFIELD, IL 60586
