Model Greenville
Fayette County, Georgia New Homes for Sale
Fayette County, Georgia New Homes for Sale
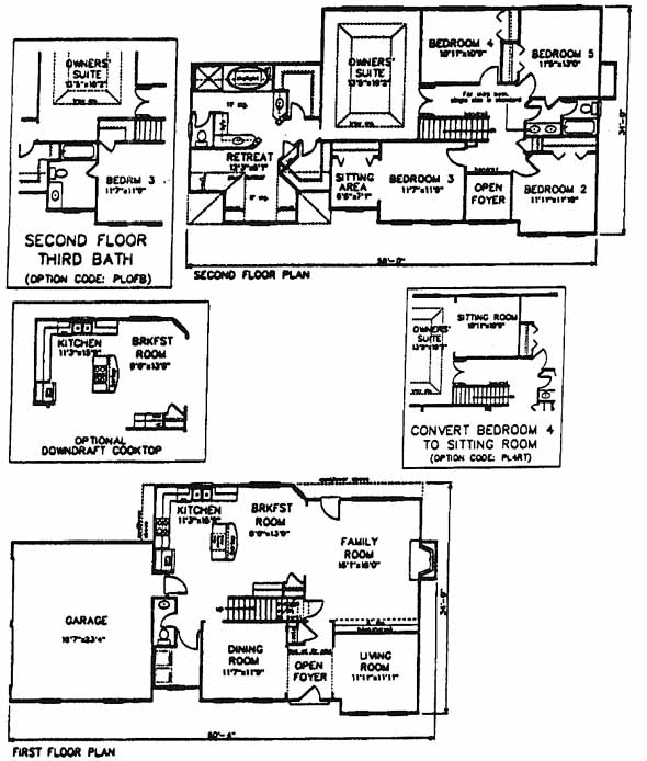
4 Bedroom, 3.5 Bath, 2 Car Garage
2800 - Square Feet
$255,900
Model Greenville - Fayette County, Georgia New Homes for Sale
4 Bedroom, 3.5 Bath, 2 Car Garage
2800 - Square Feet
$255,900
Area: Fayette County, Georgia
Beautiful 2 story brick front home. Separate living and dining room, spacious family room with fireplace. Island kitchen, owner's retreat on 2nd floor.
Please complete the form below to get more information on Model Greenville and other available new home listings from a local Fayette County, Georgia Real Estate Agent
Contact a local Fayette County, GA Real Estate Agent
(Please enter all fields.)
Greenville in Fayette County
Featured New Home
Featured Mortgage Brokers
- NORTHWEST MORTGAGE GROUP INC, PORTLAND, OR
10260 SW GREENBURG RD STE 900
PORTLAND, OR 97223 - HOMESTAR FINANCIAL CORPORATION, WINDER, GA
133 W ATHENS ST STE I
WINDER, GA 30680 - Intercap Lending, mortgage broker in Albuquerque, NM
5600 Wyoming Blvd NE Ste 20
Albuquerque, NM 87109 - SUMMIT MORTGAGE INC, FORT WAYNE, IN
8614 SAINT JOE RD
FORT WAYNE, IN 46835 - AMERICAN BANK, ROCKVILLE, MD
9201 CORPORATE BLVD STE 130
ROCKVILLE, MD 20850
Copyright © 2025 NewHomesAgents.com
