Model Stevens
Fayette County, Georgia New Homes for Sale
Fayette County, Georgia New Homes for Sale
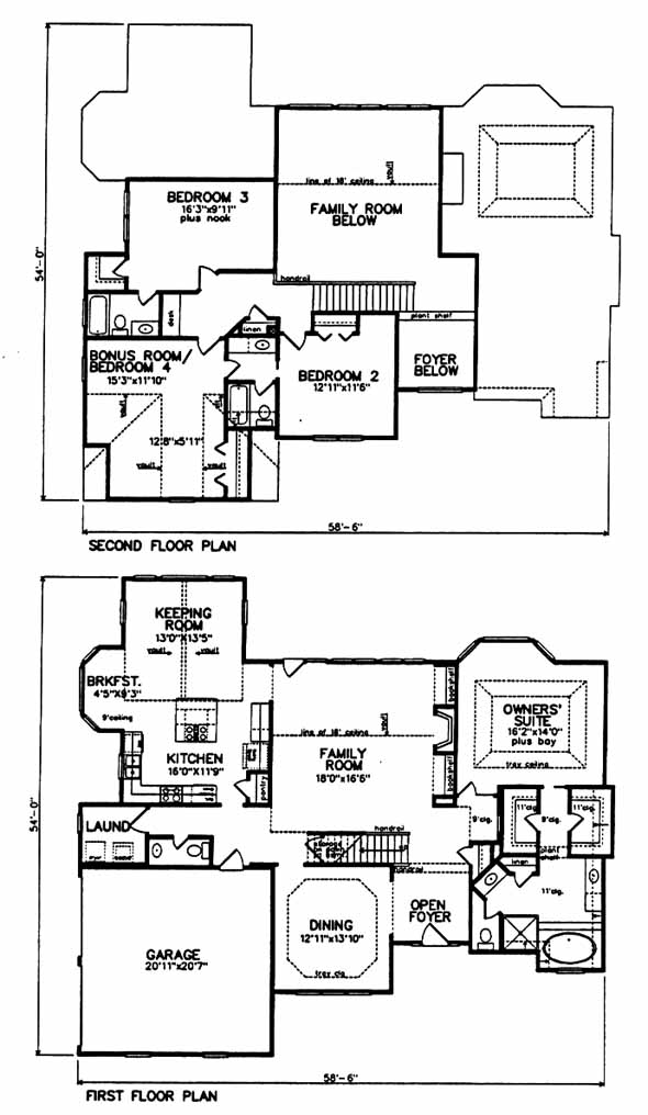
4 Bedroom, 3.5 Bath, 2 Car Garage
2900 - Square Feet
$274,900
Model Stevens - Fayette County, Georgia New Homes for Sale
4 Bedroom, 3.5 Bath, 2 Car Garage
2900 - Square Feet
$274,900
Area: Fayette County, Georgia
2 story family room, master on the main floor, vaulted family room with fireplace, fourth bedroom or bonus room
Please complete the form below to get more information on Model Stevens and other available new home listings from a local Fayette County, Georgia Real Estate Agent
Contact a local Fayette County, GA Real Estate Agent
(Please enter all fields.)
Stevens in Fayette County
Featured New Home
Featured Mortgage Brokers
- PRIMARY RESIDENTIAL MORTGAGE INC, MANCHESTER, CT
63 E CENTER ST FL 3
MANCHESTER, CT 6040 - COBALT MORTGAGE, EVERETT, WA
2825 COLBY AVE STE 305
EVERETT, WA 98201 - Priority Mortgage Corp., mortgage broker in Worthington, OH
150 E Wilson Bridge Rd Ste 350
Worthington, OH 43085 - Blue Square Mortgage LLC, mortgage broker in Seattle, WA
4212 33rd Ave W
Seattle, WA 98199 - AMERICAN NATIONWIDE MORTGAGE COMPANY INC, LITTLE RIVER, SC
2220 HIGHWAY 17
LITTLE RIVER, SC 29566
Copyright © 2025 NewHomesAgents.com
