Model Jacksonville
Douglas County, Georgia New Homes for Sale
Douglas County, Georgia New Homes for Sale
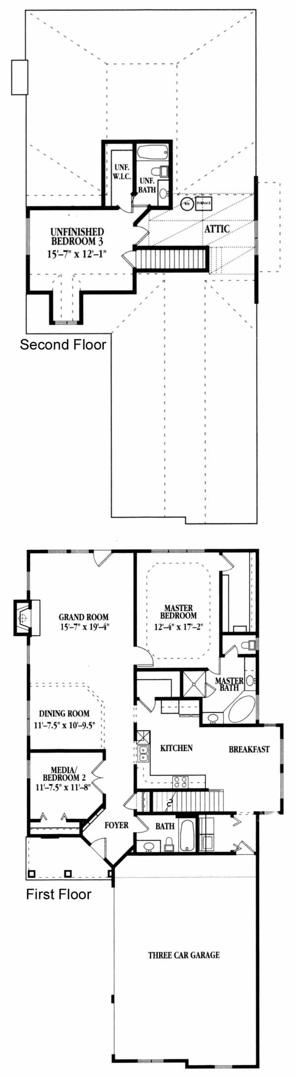
3 Bedroom, 3 Bath, 2 Car Garage
1400 - Square Feet
$242,900
Model Jacksonville - Douglas County, Georgia New Homes for Sale
3 Bedroom, 3 Bath, 2 Car Garage
1400 - Square Feet
$242,900
Area: Douglas County, Georgia
A beautiful home with a small covered porch in the front, a large kitchen with pantry and breakfast area, formal dining room and a spacious grand room with fireplace. The master bedroom has a large walk in closet, and deluxe bath with oval tub and a separate shower. Another bedroom can be found on the main floor with its own full bath, and upstairs is an unfinished bedroom and full (unfinished) bath. A swimming pool, tennis courts and nature trails can be found nearby.
Please complete the form below to get more information on Model Jacksonville and other available new home listings from a local Douglas County, Georgia Real Estate Agent
Contact a local Douglas County, GA Real Estate Agent
(Please enter all fields.)
Jacksonville in Douglas County
Featured New Home
Featured Mortgage Brokers
- BANK OF NORTH CAROLINA, CHARLOTTE, NC
7422 CARMEL EXECUTIVE PARK DR
CHARLOTTE, NC 28226 - LEGACYTEXAS BANK, PLANO, TX
5000 LEGACY DR FL 1
PLANO, TX 75024 - FIRST PREFERENCE MTG CORP, BOWIE, MD
1525 POINTER RIDGE PL
BOWIE, MD 20716 - Altamont Mortgage Funding Inc, mortgage broker in Portland, OR
4380 SW Macadam Ave Ste 125
Portland, OR 97239 - GENERATION MORTGAGE COMPANY, ATLANTA, GA
3 PIEDMONT CTR NE STE 300
ATLANTA, GA 30305
