Model Dogwood B
Dekalb County, Georgia New Homes for Sale
Dekalb County, Georgia New Homes for Sale
5 Bedroom, 3.5 Bath, Car Garage
$158,748
Model Dogwood B - Dekalb County, Georgia New Homes for Sale
5 Bedroom, 3.5 Bath, Car Garage
$158,748
Area: Dekalb County, Georgia
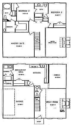
The Dogwood B has a two story great room with optional fireplace. Separate dining room, large kitchen with breakfast area. Jack 'n Jill bath between second and third bedroom accessible from hall & bedroom. Master suite has dressing area. fourth & fifth bedrooms all on third level with it's own bath.
Please complete the form below to get more information on Model Dogwood B and other available new home listings from a local Dekalb County, Georgia Real Estate Agent
Contact a local Dekalb County, GA Real Estate Agent
(Please enter all fields.)
Dogwood B in Dekalb County
Featured New Home
Featured Mortgage Brokers
- HOMESTAR FINANCIAL CORPORATION, WINDER, GA
133 W ATHENS ST STE I
WINDER, GA 30680 - MOVEMENT MORTGAGE LLC, FREDERICKSBURG, VA
4920 SOUTHPOINT DR
FREDERICKSBURG, VA 22407 - Mainstream Funding Network, Inc., mortgage broker in Williamsville, NY
5586 Main St.
Williamsville, NY 14221 - Altamont Mortgage Funding Inc, mortgage broker in Portland, OR
4380 SW Macadam Ave Ste 125
Portland, OR 97239 - CrossCountry Mortgage, Inc., mortgage broker in Elgin, IL
374 N Mclean Blvd
Elgin, IL 60123
