Model Davis
Cumming, Georgia New Homes for Sale
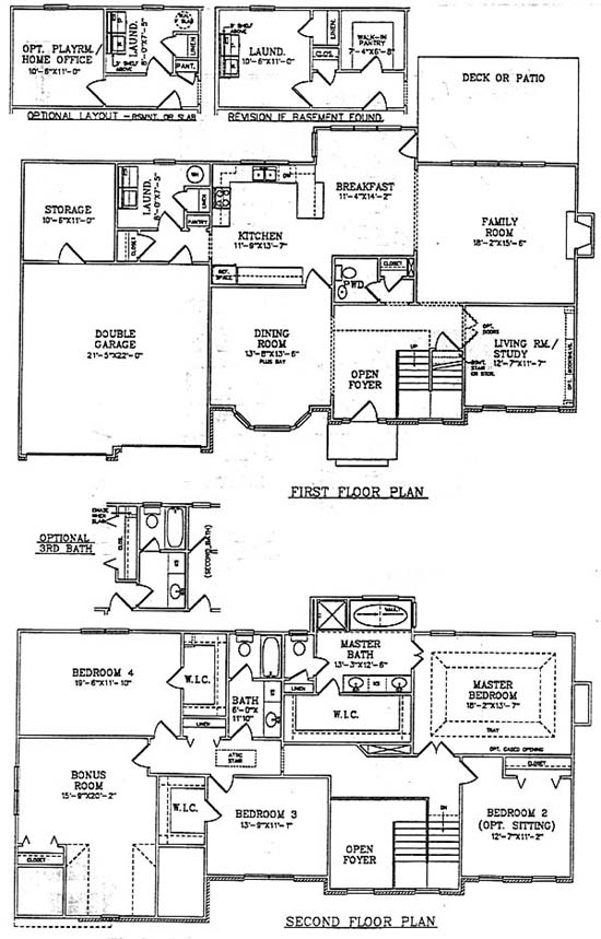
Model Davis - Cumming, Georgia New Homes for Sale
4 Bedroom, 2.5 Bath, 2 Car Garage
$251,000
Area: Cumming, Georgia
Formal dining room with bay window. Family room with fireplace. Spacious kitchen with large separate breakfast area. Roomy master suite with vaulted ceiling above tub and large walk in closet. Basement. Located in a swim and tennis community.
Please complete the form below to get more information on Model Davis and other available new home listings from a local Cumming, Georgia Real Estate Agent
Contact a local Cumming, GA Real Estate Agent
(Please enter all fields.)
Davis in Cumming
Featured New Home
Featured Real Estate Agents
Jeff Fountain
Solid Source Realty GA

Phone: (678) 621-2478
Roswell, GA
Rhonda Duffy
Duffy Realty of Atlanta

Phone: (678) 389-4952
Alpharetta, GA
[email protected]
The Sherry and Maria Team
Keller Williams Realty Consultants

Phone: (678) 293-7290
Roswell, GA
[email protected]
John R Cook
Keller Williams Community Partners

Phone: (678) 524-8573
Cumming, GA
[email protected]
Cole Team - Stephanie/Meriellen
Solid Source Realty

Phone: (770) 766-7201
Roswell, GA
[email protected]
Featured Mortgage Brokers
- COBALT MORTGAGE, EVERETT, WA
2825 COLBY AVE STE 305
EVERETT, WA 98201 - HIGH TECH LENDING INC, CITRUS HEIGHTS, CA
7777 GREENBACK LN STE 210
CITRUS HEIGHTS, CA 95610 - Priority Mortgage Corp., mortgage broker in Worthington, OH
150 E Wilson Bridge Rd Ste 350
Worthington, OH 43085 - AMERICAN MIDWEST MTG CORP, CLEVELAND, OH
6363 YORK RD STE 300
CLEVELAND, OH 44130 - EQUITY LOANS LLC, NEW CITY, NY
216 CONGERS RD STE 3A
NEW CITY, NY 10956
