Model The Arden
Athens Clarke County, Georgia New Homes for Sale
Athens Clarke County, Georgia New Homes for Sale
3 Bedroom, 2.5 Bath, 2 Car Garage
$154,900
Model The Arden - Athens Clarke County, Georgia New Homes for Sale
3 Bedroom, 2.5 Bath, 2 Car Garage
$154,900
Area: Athens Clarke County, Georgia
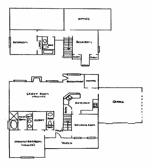
This traditional two story home has a welcoming covered front porch. The vaulted ceilings in the family room adds to the openness. The main floor master has a vaulted ceiling, full bath and a large walk in closet. The open gourmet kitchen has a large pantry and a cozy breakfast nook. The additional bedrooms are on the second floor.
Please complete the form below to get more information on Model The Arden and other available new home listings from a local Athens Clarke County, Georgia Real Estate Agent
Contact a local Athens Clarke County, GA Real Estate Agent
(Please enter all fields.)
The Arden in Athens Clarke County
Featured New Home
Featured Real Estate Agents
Eric Vaughn
Coldwell Banker Upchurch Realty

Phone: (706) 207-9438
Athens, GA
Jill Swope
CollegeTown Properties

Phone: (706) 468-3069
Athens, GA
[email protected]
Jason Bernstein
RE/MAX Top Performers

Phone: (706) 622-5512
Watkinsville, GA
[email protected]
Cord Sibilsky
Coldwell Banker Upchurch Realty

Phone: (706) 751-4954
Athens, GA
Justin Woodall
Keller Williams Realty

Phone: (706) 621-6085
Watkinsville, GA
Featured Mortgage Brokers
- UNION MORTGAGE GROUP, INC., GREENBELT, MD
7501 GREENWAY CENTER DR
GREENBELT, MD 20770 - MOVEMENT MORTGAGE LLC, FREDERICKSBURG, VA
4920 SOUTHPOINT DR
FREDERICKSBURG, VA 22407 - PRIMELENDING A PLAINSCAPITAL COMPANY, INDIANAPOLIS, IN
50 E 91ST ST STE 300
INDIANAPOLIS, IN 46240 - W J BRADLEY MORTGAGE CAPITAL, LLC, PLAINFIELD, IL
2011 S ROUTE 59
PLAINFIELD, IL 60586 - FINANCIAL FREEDOM ACQUISITION LLC, IRVINE, CA
1 BANTING
IRVINE, CA 92618
