Model Trinidad
Sun City, Florida New Homes for Sale
 
                                                                                        
                                        Sun City, Florida New Homes for Sale
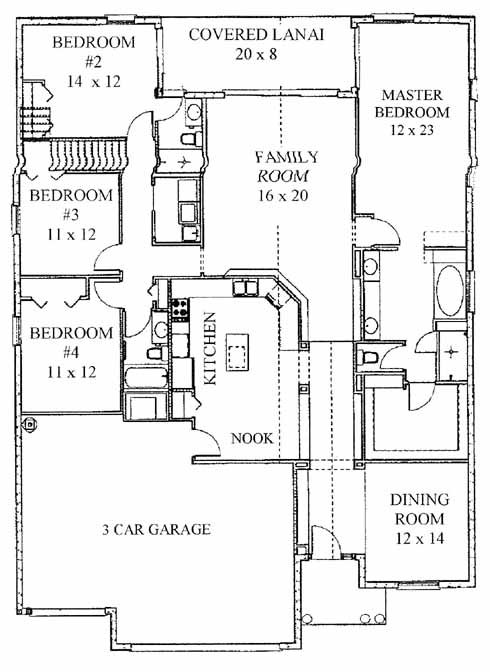
                                            4 Bedroom, 3 Bath, 3 Car Garage
2400 - Square Feet
$228,350
                                            
Model Trinidad - Sun City, Florida New Homes for Sale
                                        4 Bedroom, 3 Bath, 3 Car Garage
2400 - Square Feet
$228,350
Area: Sun City, Florida
This community of beautiful homes includes amenities to keep both kids and adults busy. The clubhouse has kitchen and recreation areas including a resort-style pool and splash pool. The kids will enjoy the tot lot and ball field. Lighted tennis and basketball courts and gazebos round out the clubhouse area. Close to area shopping, schools and restaurants.
This home has a formal dining room to one side of the foyer entrance. The nook area opens into the kitchen with island workspace and views of the family room at the back. The master bedroom includes private access to the covered lanai, an oversized walk-in closet and a master bath with double vanity, tub and separate shower. Two bedrooms share a bath while a third has a private bath, making it perfect for use as a guest suite.
Please complete the form below to get more information on Model Trinidad and other available new home listings from a local Sun City, Florida Real Estate Agent
Contact a local Sun City, FL Real Estate Agent
(Please enter all fields.)
Trinidad in Sun City
Featured New Home
 
								Featured Real Estate Agents
Dvonna Kienow
CENTURY 21 Beggins
                                            
                                            Phone: (813) 305-3970
                                            Sun City Center,  FL
                                                                                        
Ralph Curry
Signature Realty Associates
                                            
                                            Phone: (941) 219-5289
                                            Valrico,  FL
                                                                                        [email protected]
                                                                                        
Maureen Coviello
CENTURY 21 Beggins Enterprises
                                            
                                            Phone: (727) 565-1229
                                            Sun CIty Center,  FL
                                                                                        [email protected]
                                                                                        
Richard Shelley
CENTURY 21 Beggins
                                            
                                            Phone: (813) 857-7793
                                            Sun City Center,  FL
                                                                                        
Sandra Tams
Century 21 Beggins Enterprises
                                            
                                            Phone: (813) 505-9914
                                            SUN CITY CENTER,  FL
                                                                                        
Featured Mortgage Brokers
- M/I Financial, LLC, mortgage broker in Columbus, OH
 3 Easton Oval Ste 340
 Columbus, OH 43219
- LEGACYTEXAS BANK, PLANO, TX
 5000 LEGACY DR FL 1
 PLANO, TX 75024
- VENTA FINANCIAL GROUP INC, LAS VEGAS, NV
 1300 S JONES BLVD STE 150
 LAS VEGAS, NV 89146
- TOP FLITE FINANCIAL INC, WATERFORD, MI
 5663 HIGHLAND RD
 WATERFORD, MI 48327
- FIRST PRIORITY FINANCIAL INC, ROSEVILLE, CA
 1050 OPPORTUNITY DR STE 145
 ROSEVILLE, CA 95678
