Model Plan 1898
St Johns County, Florida New Homes for Sale
St Johns County, Florida New Homes for Sale
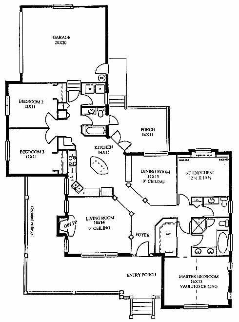
3 Bedroom, 2.5 Bath, 2 Car Garage
1898 Square Feet
$289,700
Model Plan 1898 - St Johns County, Florida New Homes for Sale
3 Bedroom, 2.5 Bath, 2 Car Garage
1898 Square Feet
$289,700
Area: St Johns County, Florida
Impressive neighborhood featuring country-style homes on large homesites. Two lakes and conservation areas throughout provide breathtaking views and a quiet setting for raising a family. Located minutes from area shopping, schools, medical facilities, beaches and I-95.
Beautiful living room to one side of the foyer entrance has ample space for entertaining guests and has an optional fireplace available. The kitchen includes an island workspace and porch access while overlooking the formal dining room. The nearby study makes a nice home office or library. The master bedroom in the front includes a walk-in closet and master bath with double vanity, tub and separate shower. Two more bedrooms share a bath and have close access to the laundry room.
Please complete the form below to get more information on Model Plan 1898 and other available new home listings from a local St Johns County, Florida Real Estate Agent
Contact a local St Johns County, FL Real Estate Agent
(Please enter all fields.)
Plan 1898 in St Johns County
Featured New Home
Featured Mortgage Brokers
- TOP FLITE FINANCIAL INC, FORT LAUDERDALE, FL
33 NE 2ND ST STE 100
FORT LAUDERDALE, FL 33301 - ACADEMY MORTGAGE CORPORATION, CHICO, CA
1600 MANGROVE AVE STE 100
CHICO, CA 95926 - BANK OF AMERICA NA CHARLOTTE, FOREST HILLS, NY
10510 QUEENS BLVD STE 2
FOREST HILLS, NY 11375 - PRIMARY RESIDENTIAL MORTGAGE INC, MIAMI, FL
7300 N KENDALL DR STE 340
MIAMI, FL 33156 - PRIMARY RESIDENTIAL MORTGAGE INC, BALTIMORE, MD
1816 ALICEANNA ST # B
BALTIMORE, MD 21231
