Model Florenza I
South Palm Beach County, Florida New Homes for Sale
South Palm Beach County, Florida New Homes for Sale
4 Bedroom, 3.5 Bath, 3 Car Garage
3945 - Square Feet
$651,000
Model Florenza I - South Palm Beach County, Florida New Homes for Sale
4 Bedroom, 3.5 Bath, 3 Car Garage
3945 - Square Feet
$651,000
Area: South Palm Beach County, Florida
This stunning gatehouse community has everything you could ever want just seconds from your home. Some amenities include a state-of-the-art fitness center, heated swimming pool, spa, lighted tennis courts, basketball court, children's playground, game room, media room and a multi-purpose field for you and your kids to enjoy. This community is also close to shopping restaurants and schools for your convenience.
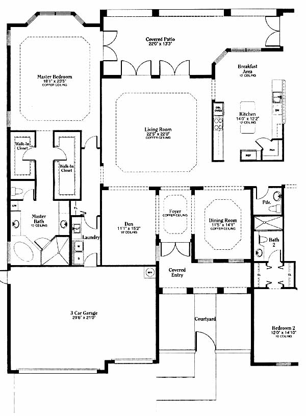
The foyer flanked by the den and dining room takes you into the large living room. To your left you can access the master bedroom with his and her walk-in closets and master bath with dual vanities. To the right of the living room is the kitchen with island, pantry and breakfast area. The kitchen is open to the huge family room which access's the 2nd bedroom with bath and the 3rd and 4th bedrooms and hall bath.
Please complete the form below to get more information on Model Florenza I and other available new home listings from a local South Palm Beach County, Florida Real Estate Agent
Contact a local South Palm Beach County, FL Real Estate Agent
(Please enter all fields.)
Florenza I in South Palm Beach County
Featured New Home
Featured Mortgage Brokers
- LEADER ONE FINANCIAL CORPORATION, OVERLAND PARK, KS
11020 KING ST STE 390
OVERLAND PARK, KS 66210 - FIRST PRIORITY FINANCIAL INC, ROSEVILLE, CA
1050 OPPORTUNITY DR STE 145
ROSEVILLE, CA 95678 - PROFICIO MORTGAGE VENTURES LLC, BRUNSWICK, OH
2950 WESTWAY DR STE 101
BRUNSWICK, OH 44212 - WELLS FARGO BANK NA, DES MOINES, IA
1 HOME CAMPUS # 4801-196
DES MOINES, IA 50328 - AMERIPRO FUNDING INC, SAN ANTONIO, TX
401 E SONTERRA BLVD STE 375
SAN ANTONIO, TX 78258
