Model San Clementina
Palm Coast, Florida New Homes for Sale
                                                                                        
                                        Palm Coast, Florida New Homes for Sale
                                            4 Bedroom, 3 Bath, 2 Car Garage
2563 - Square Feet
$350,000
                                            
Model San Clementina - Palm Coast, Florida New Homes for Sale
                                        4 Bedroom, 3 Bath, 2 Car Garage
2563 - Square Feet
$350,000
Area: Palm Coast, Florida
Palm Coast has a number of communities that the San Clementina would fit into including the gated community in which this model is built. This community is close to everything: 20 minutes from Daytona, 20 minutes to St. Augustine, 90 minutes to Disney and regional shopping is only a few minutes away. This is a new community with good schools that would be perfect for any family looking to move or one just starting out.
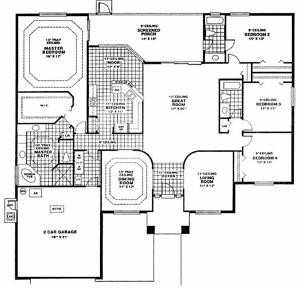
As you enter this lovely home through the foyer you'll pass the living room and dining room with a tray ceiling on your way to the huge great room. There are also 3 large bedrooms with 9' ceilings, 2 baths, a screened porch and massive kitchen with step up bar and breakfast nook in this impressive home. Last but not least is the master bedroom with a 13' tray ceiling, walk-in closet and master bath with a 10' tray ceiling, roman tub, linen closet and dual vanities.
Please complete the form below to get more information on Model San Clementina and other available new home listings from a local Palm Coast, Florida Real Estate Agent
Contact a local Palm Coast, FL Real Estate Agent
(Please enter all fields.)
San Clementina in Palm Coast
Featured New Home
								Featured Real Estate Agents
Carlene Reardon
Coldwell Banke RRE
                                            
                                            Phone: (877) 564-9329
                                            Palm Coast,  FL
                                                                                        [email protected]
                                                                                        
Alina Pekarsky
Virtual Homes Realty
                                            
                                            Phone: (386) 597-0723
                                            Palm Coast,  FL
                                                                                        [email protected]
                                                                                        
Kendall caputo
Flagler Coastal Properties
                                            
                                            Phone: (386) 597-0725
                                            Flagler Beach,  FL
                                                                                        [email protected]
                                                                                        
Mari Parks
Take Action Properties
                                            
                                            Phone: (386) 246-2545
                                            Palm Coast,  FL
                                                                                        [email protected]
                                                                                        
Elena Tchoumakova
APEX REALTY LLC
                                            
                                            Phone: (386) 986-5053
                                            Palm Coast,  FL
                                                                                        [email protected]
                                                                                        
Featured Mortgage Brokers
- PRIMELENDING A PLAINSCAPITAL COMPANY, NORTH SYRACUSE, NY
6702 BUCKLEY RD STE 140
NORTH SYRACUSE, NY 13212 - CHARTER WEST NATIONAL BANK, GRAND ISLAND, NE
714 N DIERS AVE
GRAND ISLAND, NE 68803 - Altamont Mortgage Funding Inc, mortgage broker in Portland, OR
4380 SW Macadam Ave Ste 125
Portland, OR 97239 - ALCOVA MORTGAGE LLC, ROANOKE, VA
305 MARKET ST SE STE 204
ROANOKE, VA 24011 - Ross Mortgage Corporation, mortgage broker in Royal Oak, MI
27862 Woodward Avenue
Royal Oak, MI 48067 
