Model Cypress Tuscan
North Palm Beach County, Florida New Homes for Sale
North Palm Beach County, Florida New Homes for Sale
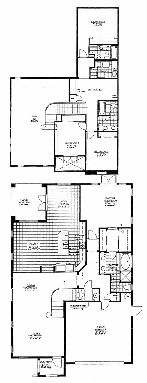
4 Bedroom, 3.5 Bath, 2 Car Garage
2804 - Square Feet
$519,990
Model Cypress Tuscan - North Palm Beach County, Florida New Homes for Sale
4 Bedroom, 3.5 Bath, 2 Car Garage
2804 - Square Feet
$519,990
Area: North Palm Beach County, Florida
Peaceful preserves and pristine lakes can be found within this gated community of beautiful homes where nature and modern living blend together brilliantly. Enjoy wooded walking trails around the 36-acre fresh-water lake where you can fish, canoe or relax on a paddle boat. The clubhouse includes a town hall, aerobics and athletics studios. Luxury living at its best can be enjoyed in this exquisite community that is conveniently located near area shopping and fine dining establishments.
This home features a first-floor master bedroom that includes a walk-in closet and master bath with double vanity, tub and separate shower. Living and dining rooms welcome guests into the home. The family room that follows is perfect for entertaining guests. The kitchen that overlooks the family room includes a pantry and island workspace with double sink. The nook at the back has access to the lanai. The second floor has three bedrooms, including one that makes a nice guest suite with a private bath. The study/loft area is a nice spot for kids to work on homework.
Please complete the form below to get more information on Model Cypress Tuscan and other available new home listings from a local North Palm Beach County, Florida Real Estate Agent
Contact a local North Palm Beach County, FL Real Estate Agent
(Please enter all fields.)
Cypress Tuscan in North Palm Beach County
Featured New Home
Featured Mortgage Brokers
- PRIMELENDING A PLAINSCAPITAL COMPANY, MELVILLE, NY
200 BROADHOLLOW RD STE 207
MELVILLE, NY 11747 - PRIMELENDING A PLAINSCAPITAL COMPANY, NORTH SYRACUSE, NY
6702 BUCKLEY RD STE 140
NORTH SYRACUSE, NY 13212 - HOMESTAR FINANCIAL CORPORATION, WINDER, GA
133 W ATHENS ST STE I
WINDER, GA 30680 - AMERICAN BANK, ROCKVILLE, MD
9201 CORPORATE BLVD STE 130
ROCKVILLE, MD 20850 - FINANCIAL FREEDOM ACQUISITION LLC, IRVINE, CA
1 BANTING
IRVINE, CA 92618
